Back to Property Listings

Well-located property with refurbishment potential and reliable demand

Description

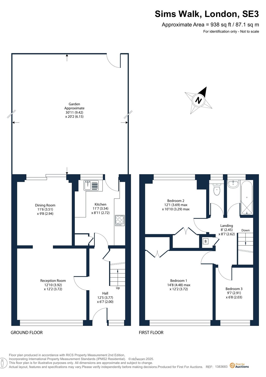
Sims Walk provides an appealing opportunity for buyers seeking value, space and long-term potential in one of south-east London’s most consistently popular districts. With well-balanced accommodation across two floors and the added benefit of a separate garage in a nearby block, the property offers versatility for both comfortable living and future rental appeal.

Located just moments from the desirable amenities of Blackheath and within easy reach of Greenwich, the property benefits from excellent transport connections including nearby rail services offering swift links to central London. The area is well regarded for its village-style atmosphere, open green spaces, reputable schools and thriving local scene, all of which contribute to steady demand from both homeowners and renters. Everyday conveniences, parks, cafés and commuter routes are close to hand, enhancing the property’s broad lifestyle appeal.

Note: A supplementary leasehold title (SGL63437) relating to part of the property/garage is included in the sale. Full documentation in the legal pack.

Auction
To be sold by online auction (unconditional) on Thursday 29th January 2025 with a 6 WEEK COMPLETION, bidding will open at 10.00.

Registration
All bidders/potential buyers are required to register ahead of the auction date to be able to bid/buy, please visit our website to setup an online auction account.

Tenure
Freehold with vacant possession

Tenancies
let on an AST from 29.08.2025 for 12 months (with a 6 month break clause) at £2,250 PCM.

EPC rating
D

Council tax band
D - Lewisham

Legal pack
For each lot there are Special Conditions of Sale and other documentation provided by the vendor's solicitors. If you wish to receive the Legal Pack, you will be able to register for this via the link on our website. You will receive notification by email once the Legal Pack is received from the solicitor. The documents may not tell you everything you need to know about the property and you are required to complete your own due diligence before bidding.

Additional fees
A buyers charge of £1,500 including VAT is payable on each lot that you buy, in addition to the sale price. Please be aware there may be other additional fees, including disbursements contained in the legal pack payable on completion. Please ensure that you check the legal pack for each lot that you are interested in, prior to bidding.

Deposit
If you are the highest bidder when the auction ends, contracts are exchanged between you and the seller. Both parties are legally bound to complete the transaction as per the special conditions in the legal pack. Your card will be automatically debited for the bidder security amount of £6,000 and we'll require the remaining balance for a 10% non-refundable deposit. We will contact you after the auction has finished to make these arrangements.

Pre-auction offers
These must be made in writing and will only be considered if the Legal Pack has been inspected and proof of funding has been supplied to the auctioneers. Pre-auction offers are only considered on an auction basis in accordance with the “Terms & Conditions - Unconditional Auction".

Mortgage finance
We advise all bidders who require a mortgage to confirm with their Financial Advisor as to whether or not the lot you are interested in would be suitable security to borrow finance against, prior to bidding. If you need to arrange a mortgage it is important that you obtain an offer from your lender before the day of the auction. Most building societies and banks will instruct a surveyor to prepare a valuation report before making a mortgage offer.

Please note
All plans are strictly for identification purposes only and should not be relied upon. Please refer to the legal pack for the Land Registry plan of each lot. Any plans are reproduced from Ordnance Survey maps with kind permission of the Controller of Her Majesty's Stationery Office @ Crown copyright. All rights reserved, Licence no: 100020449.

* Generally speaking Guide Prices are provided as an indication of each seller's minimum expectation, i.e. 'The Reserve'. They are not necessarily figures which a property will sell for and may change at any time prior to the auction. Virtually every property will be offered subject to a Reserve (a figure below which the Auctioneer cannot sell the property during the auction) which we expect will be set within the Guide Range or no more than 10% above a single figure Guide.

6 Sims Walk, London, SE3 9DF

Unconditional Online Auction Sale
Guide Price* £580,000

Loading the bidding panel...


Log in to view legal documents

Joint Agent


Agreement Documents


Further Details


Similar Properties

 

Flat 2, 140 Coldharbour Lane, London, Lambeth, SE5 9QH

Guide Price*:
£410,000
 

Berberis, Loxwood Road, Plaistow, Billingshurst, West Sussex, RH14 0PE

Guide Price*:
£345,000
 

Flat 11 Pearce House, Junction Road, London, N19 5QD

Guide Price*:
£110,000
 

3C Doggett Road, London, SE6 4PZ

Guide Price*:
£110,000
 

6 Sims Walk, London, SE3 9DF

Guide Price*:
£580,000
 

1 Radstock Farm Cottages, Radstock Lane, Earley, Reading, Berkshire, RG6 5UN

Guide Price*:
£420,000
 

26 St. Pauls Court, Reading, Berkshire, RG1 6HF

Guide Price*:
£90,000
 

Apartment 18 The Foundry, 2A Lower Chatham Street, Manchester, Lancashire, M1 5TF

Guide Price*:
£150,000
 

20 Gravenmoor Drive, Salford, Lancashire, M7 4YW

Guide Price*:
£185,000
 

9 York Court Kingsway Gardens, Andover, Hampshire, SP10 4BJ

Guide Price*:
£90,000
 

Flat 12 Vienna Court, Vesey Close, Farnborough, Hampshire, GU14 8UT

Guide Price*:
£120,000
 

81 Mount Road, Bournemouth, Dorset, BH11 8BQ

Guide Price*:
£225,000
 

443A Princes Road, Dartford, Kent, DA1 1RB

Guide Price*:
£155,000
 

35 Dell Farm Road, Ruislip, Middlesex, HA4 7TX

Guide Price*:
£300,000
 

169 Riverdale Road, Erith, Kent, DA8 1PY

Guide Price*:
£260,000
 

76 Edison Way, Arnold, Nottingham, Nottinghamshire, NG5 7NJ

Guide Price*:
£90,000
 

Flat 2, 140 Maybury Road, Woking, Surrey, GU21 5JR

Guide Price*:
£120,000
 

Flat 71 Priory Court, 1 Cheltenham Road, London, SE15 3BG

Guide Price*:
£300,000
 

1 Fitzmaurice Road, Ipswich, Suffolk, IP3 9AX

Guide Price*:
£160,000
 

52 Landmere Gardens, Nottingham, Nottinghamshire, NG3 3BJ

Guide Price*:
£100,000
 

23 Dennis Way, Slough, Buckinghamshire, SL1 5JS

Guide Price*:
£420,000
 

18 Russell Street, Gosport, Hampshire, PO12 3JD

Guide Price*:
£110,000
 

Land At Hurst Farm, Clay Lane, Jacobs Well, Surrey, GU4 7PF

Guide Price*:
£210,000
 

Flat 12A Foley Hall, 58-60 London Road, Reading, Berkshire, RG1 5AS

Guide Price*:
£75,000
 

Flat 3, 177 Victoria Road, Aldershot, Hampshire, GU11 1JU

Guide Price*:
£70,000
 

5 Folly View Road, Faringdon, Oxfordshire, SN7 7DL

Guide Price*:
£275,000
 

38 Hillcrest Avenue, Chertsey, Surrey, KT16 9RE

Guide Price*:
£590,000
 

Flat 3 Highgate Court, 26-32 High Street, Clacton-on-Sea, Essex, CO15 1UQ

Guide Price*:
£55,000
 

Flat 57 Rodney Court, Anson Drive, Southampton, Hampshire, SO19 8RW

Guide Price*:
£65,000
 

Flat 10 Hawk House, 21 Union Road, Ryde, Isle Of Wight, PO33 2ER

Guide Price*:
£70,000
 

181 Belmont Street, Hull, North Humberside, HU9 2RJ

Guide Price*:
£45,000
 

58 Riverside House, Fobney Street, Reading, Berkshire, RG1 6BJ

Guide Price*:
£255,000
 

15C Kangley Bridge Road, London, SE26 5BA

Guide Price*:
£200,000
 

Westbury Working Mens Club, Main Street, Westbury, Brackley, Northamptonshire, NN13 5JR

Guide Price*:
£90,000
 

71 Horsebridge Hill, Newport, Isle Of Wight, PO30 5TJ

Guide Price*:
£150,000
 

Apartment 7 Vestry Court, 6 John William Street, Eccles, Manchester, Lancashire, M30 0EH

Guide Price*:
£65,000
 

Flat 268 Irving House, Doddington Grove, London, SE17 3TS

Guide Price*:
£270,000
 

Flat 7 James House, Church Lane, Ryde, Isle Of Wight, PO33 2LX

Guide Price*:
£45,000

How much is your property really worth?

Whether you’re looking to sell or let your property, we can provide you with a free, accurate valuation based on our expert knowledge and the latest trends in your local area.