Back to Property Listings

Attractive long-lease flat offering strong rental prospects in a well-connected Southampton location.

Description

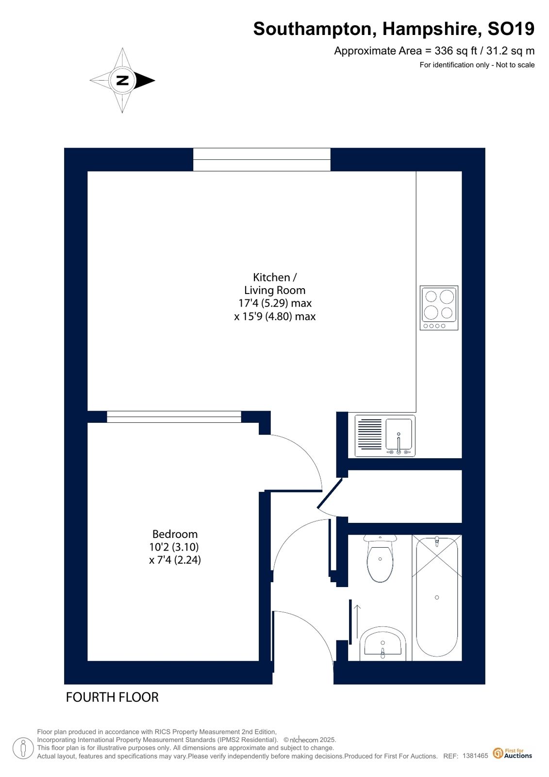
A vacant one-bedroom apartment, requiring only minor improvement works, and benefitting from a long lease of approximately 949 years, offering long-term security for future ownership.

Located in the popular Sholing suburb of Southampton, the property provides convenient access to Southampton City Centre and the Port.

The apartment presents an excellent investment opportunity. Once refurbished, it is anticipated to achieve a rental income in the region of £800 per calendar month (subject to condition), offering a potential gross yield of up to 14.8% per annum.

Auction
To be sold by online auction (unconditional) on Thursday 29th January 2026 with a 6 WEEK COMPLETION, bidding will open at 10.00.

Registration
All bidders/potential buyers are required to register ahead of the auction date to be able to bid/buy, please visit our website to setup an online auction account.

Tenure
Leasehold with vacant possession

Lease
999 years from 1st July 1976 - 949 years remaining.

Ground rent and service charge
Please see legal pack for further details.

EPC rating
C

Council tax band
A- Southampton City Council

Legal pack
For each lot there are Special Conditions of Sale and other documentation provided by the vendor’s solicitors. If you wish to receive the Legal Pack, you will be able to register for this via the link on our website. You will receive notification by email once the Legal Pack is received from the solicitor. The documents may not tell you everything you need to know about the property and you are required to complete your own due diligence before bidding.

Additional fees
A buyers charge of £1,500 including VAT is payable on each lot that you buy, in addition to the sale price. Please be aware there may be other additional fees, including disbursements contained in the legal pack payable on completion. Please ensure that you check the legal pack for each lot that you are interested in, prior to bidding.

Deposit
If you are the highest bidder when the auction ends, contracts are exchanged between you and the seller. Both parties are legally bound to complete the transaction as per the special conditions in the legal pack. Your card will be automatically debited for the bidder security amount of £6,000 and we’ll require the remaining balance for a 10% non-refundable deposit. We will contact you after the auction has finished to make these arrangements.

Pre-auction offers
These must be made in writing and will only be considered if the Legal Pack has been inspected and proof of funding has been supplied to the auctioneers. Pre-auction offers are only considered on an auction basis in accordance with the “Terms & Conditions - Unconditional Auction”.

Mortgage finance
We advise all bidders who require a mortgage to confirm with their Financial Advisor as to whether or not the lot you are interested in would be suitable security to borrow finance against, prior to bidding. If you need to arrange a mortgage it is important that you obtain an offer from your lender before the day of the auction. Most building societies and banks will instruct a surveyor to prepare a valuation report before making a mortgage offer.

* Generally speaking Guide Prices are provided as an indication of each seller's minimum expectation, i.e. 'The Reserve'. They are not necessarily figures which a property will sell for and may change at any time prior to the auction. Virtually every property will be offered subject to a Reserve (a figure below which the Auctioneer cannot sell the property during the auction) which we expect will be set within the Guide Range or no more than 10% above a single figure Guide.

Lot 14 - Flat 57 Rodney Court, Anson Drive, Southampton, Hampshire, SO19 8RW

Unconditional Online Auction Sale
Guide Price* £65,000

Loading the bidding panel...


Agreement Documents


Further Details


Similar Properties

 

18 Peppard Road, Caversham, Reading, Berkshire, RG4 8JZ

Guide Price*:
£500,000
 

35 Orme Road, Kingston upon Thames, Surrey, KT1 3SD

Guide Price*:
£530,000
 

Flat 11 Lundy House, Drake Way, Reading, Berkshire, RG2 0GQ

Guide Price*:
£140,000
 

2 Beechnut Road, Aldershot, Hampshire, GU12 4JG

Guide Price*:
£170,000
 

Flat 611 Churchill Place, Churchill Way, Basingstoke, Hampshire, RG21 7AA

Guide Price*:
£80,000
 

Flat 7 Sourton House, Battle Square, Reading, Berkshire, RG30 1DS

Guide Price*:
£170,000
 

22 Chesterfield Road, Basingstoke, Hampshire, RG21 3BG

Guide Price*:
£240,000
 

406 Winterthur Way, Basingstoke, Hampshire, RG21 7UN

Guide Price*:
£110,000
 

24 Culdrose House, 1 Frederick Street, Aldershot, Hampshire, GU11 1LQ

Guide Price*:
£88,000
 

48 Little Ilford Lane, London, E12 5PW

Guide Price*:
£160,000
 

Three Sixes, Cobbs Fenn, Sible Hedingham, Halstead, Essex, CO9 3RX

Guide Price*:
£380,000
 

49 Petersham Avenue, Byfleet, West Byfleet, Surrey, KT14 7HY

Guide Price*:
£400,000
 

Flat 17 Tulk House, Ottershaw Park, Ottershaw, Chertsey, Surrey, KT16 0QG

Guide Price*:
£345,000
 

26 Burnelli Building, 352 Queenstown Road, London, SW11 8NG

Guide Price*:
£440,000
 

Flat 2 Jubilee Heights, Parkside Avenue, London, SE10 8FN

Guide Price*:
£300,000
 

Flat 1, 26 Hervey Road, Kidbrooke, Greenwich, SE3 8BS

Guide Price*:
£270,000
 

4 Kirtley Road, London, SE26 4TL

Guide Price*:
£360,000
 

Flat 2, 140 Coldharbour Lane, London, Lambeth, SE5 9QH

Guide Price*:
£410,000
 

Mote Cottage, London Road, Wrotham, Sevenoaks, Kent, TN15 7RR

Guide Price*:
£330,000
 

7 Coastguard Walk, Felixstowe, Suffolk, IP11 2GB

Guide Price*:
£240,000
 

7 Northgate, Chichester, West Sussex, PO19 1BA

Guide Price*:
£165,000
 

44 Elmshott Lane, Slough, Buckinghamshire, SL1 5RB

Guide Price*:
£420,000
 

214 Knolton Way, Slough, Berkshire, SL2 5RS

Guide Price*:
£170,000
 

21 Gunton St. Peters Avenue, Lowestoft, Suffolk, NR32 4JP

Guide Price*:
£260,000
 

23 Brookside Road, Watford, Hertfordshire, WD19 4BW

Guide Price*:
£400,000
 

7 Market Terrace, Albany Road, Brentford, Middlesex, TW8 0NQ

Guide Price*:
£220,000
 

Robin Cottage, 4 Robin Close, Great Kingshill, High Wycombe, Buckinghamshire, HP15 6EQ

Guide Price*:
£750,000
 

8 Marks Orchard, Granborough, Buckingham, Buckinghamshire, MK18 3QS

Guide Price*:
£550,000
 

295 Woodborough Road, Nottingham, Nottinghamshire, NG3 4JT

Guide Price*:
£225,000
 

85 Melbourne Street, Derby, Derbyshire, DE1 2GF

Guide Price*:
£130,000
 

149 Woodcock Road, Norwich, Norfolk, NR3 3TQ

Guide Price*:
£120,000
 

Flat 2 Naden Green, 74-76 Middleton Hall Road, Birmingham, West Midlands, B30 1DG

Guide Price*:
£35,000
 

3 Brasenose Driftway, Oxford, Oxfordshire, OX4 2QX

Guide Price*:
£365,000
 

34 Glebe Way, Jaywick, Clacton-on-Sea, Essex, CO15 2EW

Guide Price*:
£75,000
 

Flat 6 Sextant Court, Armada Way, Littlehampton, West Sussex, BN17 6QY

Guide Price*:
£85,000
 

94 Collingwood Close, Eastbourne, East Sussex, BN23 6HZ

Guide Price*:
£100,000
 

Bearwood, New Village, Freshwater, Isle Of Wight, PO40 9HU

Guide Price*:
£300,000
 

18A & 18B Church Gate, Loughborough, Leicestershire, LE11 1UD

Guide Price*:
£190,000
 

13 Wendling Close, Stoke-on-Trent, Staffordshire, ST2 0PP

Guide Price*:
£90,000
 

27 Moor Street, Mansfield, Nottinghamshire, NG18 5SH

Guide Price*:
£70,000
 

Apartment 208, 25 Simpson Street, Manchester, Lancashire, M4 4AS

Guide Price*:
£120,000
 

15 Betsham Street, Manchester, Lancashire, M15 5JN

Guide Price*:
£95,000
 

36-37 The Strand, Ryde, Isle of Wight, PO33 1JF

Guide Price*:
£650,000
 

8 Bath Road, Newcastle, Staffordshire, ST5 6QX

Guide Price*:
£75,000
 

Garage 20 Wallace Close, Woodley, Reading, Berkshire, RG5 3HW

Guide Price*:
£6,000
 

Garage 50, Park Gardens, Christchurch, Dorset, BH23 3PQ

Guide Price*:
£6,500
 

Garage 51, Park Gardens, Christchurch, Dorset, BH23 3PQ

Guide Price*:
£6,500

How much is your property really worth?

Whether you’re looking to sell or let your property, we can provide you with a free, accurate valuation based on our expert knowledge and the latest trends in your local area.

Book a Valuation