Back to Property Listings

Ground floor two bedroom apartment with tenant in situ and immediate income - 20.7% gross yield

Description

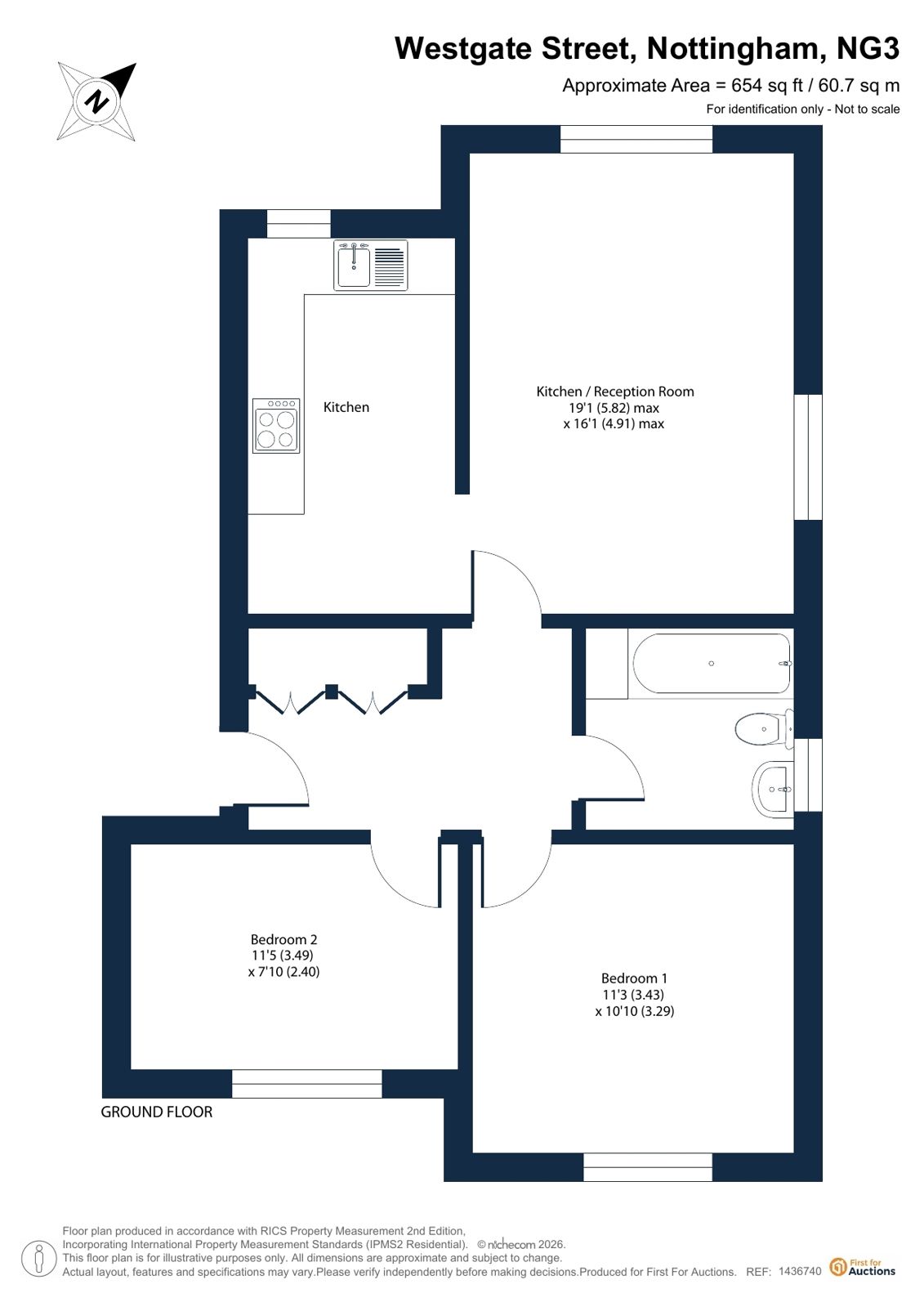
A ground floor two bedroom apartment offering an excellent investment opportunity with a tenant in situ currently paying £950 PCM, providing immediate and reliable income. The property is presented in fair condition, giving scope for future improvement.

The accommodation is well laid out with two bedrooms, a comfortable living space, functional kitchen and bathroom, appealing to both investors and owner-occupiers. Positioned on Westgate Street, the property is within easy reach of Nottingham city centre, local amenities, and transport links, supporting strong ongoing rental demand.

Auction
To be sold by online auction (conditional) on Thursday 30th April 2026 with an 8 WEEK EXCHANGE, bidding will open at 10.00.

Registration
All bidders/potential buyers are required to register ahead of the auction date to be able to bid/buy, please visit our website to setup an online auction account.

Tenure
Leasehold with tenant in situ.

Lease
125 years from and including 1 July 2008

Ground rent and service charge
Please see legal pack for further details.

EPC rating
D

Council tax band
A - Nottingham

Reservation Deposit
The buyer is required to sign a Reservation Agreement and make payment of a non-refundable Reservation Deposit of £6,000 to the Auctioneer in return for the grant of the Exclusivity Period. The Reservation Deposit forms part of the purchase price for the property.

Exclusivity Period
Exclusivity Period means the period of 56 days from the date the Reservation Deposit is received by the Auctioneer, during which the Buyer and Seller will endeavour to exchange Contracts for the Transaction. Full details and a sample copy of the Reservation Agreement and Terms and Conditions are available in the Legal Pack.

Legal pack
For each lot there are Special Conditions of Sale and other documentation provided by the vendor's solicitors. If you wish to receive the Legal Pack, you will be able to register for this via the link on our website. You will receive notification by email once the Legal Pack is received from the solicitor. The documents may not tell you everything you need to know about the property and you are required to complete your own due diligence before bidding.

Guide prices
Guide Prices are provided as an indication of each seller's minimum expectation. They are not necessarily figures which a lot will sell for and may change at any time prior to the auction. Each lot will be offered subject to a Reserve, (a figure below which the Auctioneer cannot sell the lot during the auction) which we expect will be set within the Guide Range, or no more than 10% above a single figure Guide Price.

Additional fees
Please ensure that you check the Legal Pack for each lot that you are interested in, prior to bidding. Paid in addition to the purchase price on completion, the Buyer shall reimburse the Seller's solicitors in respect of disbursements incurred in obtaining the Local, Drainage and Environmental search results at £399.60 inc VAT, and the sellers auction fees relating to the sale charged at £6,000 inc VAT.

Pre-auction offers
These must be made in writing and will only be considered if the Legal Pack has been inspected and proof of funding has been supplied to the auctioneers. Pre-auction offers are only considered on an auction basis in accordance with the “Terms & Conditions - Unconditional Auction".

Mortgage finance
We advise all bidders who require a mortgage to confirm with their Financial Advisor as to whether or not the lot you are interested in would be suitable security to borrow finance against, prior to bidding. If you need to arrange a mortgage it is important that you obtain an offer from your lender before the day of the auction. Most building societies and banks will instruct a surveyor to prepare a valuation report before making a mortgage offer.

* Generally speaking Guide Prices are provided as an indication of each seller's minimum expectation, i.e. 'The Reserve'. They are not necessarily figures which a property will sell for and may change at any time prior to the auction. Virtually every property will be offered subject to a Reserve (a figure below which the Auctioneer cannot sell the property during the auction) which we expect will be set within the Guide Range or no more than 10% above a single figure Guide.

Apartment 1, 40 Westgate Street, Nottingham, Nottinghamshire, NG3 3GA

Unconditional Online Auction Sale
Guide Price* £55,000

Loading the bidding panel...


Log in to view legal documents

Joint Agent


Agreement Documents


Further Details


Similar Properties

 

20 Southampton Street, Farnborough, Hampshire, GU14 6AX

Guide Price*:
£365,000
 

57 Tockley Road, Burnham, Slough, Buckinghamshire, SL1 7DQ

Guide Price*:
£200,000
 

100 Lime Walk, Headington, Oxford, Oxfordshire, OX3 7AF

Guide Price*:
£365,000
 

120 Ferry Road, Marston, Oxford, Oxfordshire, OX3 0EX

Guide Price*:
£460,000
 

3 Brasenose Driftway, Oxford, Oxfordshire, OX4 2QX

Guide Price*:
£365,000
 

Flat 13 Kennedy House, Orchard Way, Banbury, Oxfordshire, OX16 0EL

Guide Price*:
£90,000
 

86 Canning Road, Harrow, Middlesex, HA3 7SN

Guide Price*:
£500,000
 

12 Holyrood Avenue, Harrow, Middlesex, HA2 8TP

Guide Price*:
£390,000
 

25 Seymour Gardens, Ruislip, Middlesex, HA4 9QA

Guide Price*:
£200,000
 

12B Station Parade, Whitchurch Lane, Edgware, Middlesex, HA8 6RW

Guide Price*:
£175,000
 

2 Ivy House Cottage, 58 Ivy House Road, Ickenham, Uxbridge, Middlesex, UB10 8LZ

Guide Price*:
£140,000
 

1 High Copse Farm Cottages, Hyde End Road, Shinfield, Reading, Berkshire, RG2 9ES

Guide Price*:
£150,000
 

2 High Copse Farm Cottages, Hyde End Road, Shinfield, Reading, Berkshire, RG2 9ES

Guide Price*:
£255,000
 

4 Ilbury Close, Shinfield, Reading, Berkshire, RG2 9DE

Guide Price*:
£150,000
 

17 Malvern Court Addington Road, Reading, Berkshire, RG1 5PL

Guide Price*:
£130,000
 

22 Petworth Court, Bath Road, Reading, Berkshire, RG1 6PH

Guide Price*:
£175,000
 

Flat 7 Sourton House, Battle Square, Reading, Berkshire, RG30 1DS

Guide Price*:
£160,000
 

Flat 11 Lundy House, Drake Way, Reading, Berkshire, RG2 0GQ

Guide Price*:
£140,000
 

Flat 4 Appleby House, 6 Derby Road, Caversham, Reading, Berkshire, RG4 5EY

Guide Price*:
£155,000
 

Church Cottages, 2 Church Lane, Bledlow Ridge, High Wycombe, Buckinghamshire, HP14 4AX

Guide Price*:
£300,000
 

Flat, 2, The Parade, Caterways, Horsham, West Sussex, RH12 2AL

Guide Price*:
£90,000
 

Flat 37 Berkeley Court, The Esplanade, Bognor Regis, West Sussex, PO21 1LX

Guide Price*:
£150,000
 

12 Mead Lane, Farnham, Surrey, GU9 7DY

Guide Price*:
£210,000
 

Flat 17 Tulk House, Ottershaw Park, Ottershaw, Chertsey, Surrey, KT16 0QG

Guide Price*:
£320,000
 

Flat 3 Aragon House, 21 Yeovil Road, Farnborough, Hampshire, GU14 6EX

Guide Price*:
£120,000
 

16 Avenue Road, Sileby, Loughborough, Leicestershire, LE12 7PG

Guide Price*:
£130,000
 

Apartment 21 Alexandra House, 47 Rutland Street, Leicester, Leicestershire, LE1 1SE

Guide Price*:
£50,000
 

97 Cofton Road, Birmingham, West Midlands, B31 3QT

Guide Price*:
£90,000
 

52 Barn Piece, Chandler's Ford, Eastleigh, Hampshire, SO53 4HP

Guide Price*:
£260,000
 

7 Whinchat Close, Fareham, Hampshire, PO15 6LR

Guide Price*:
£210,000
 

6 Jade Mews, 62 Kingston Road, Portsmouth, Hampshire, PO2 7PE

Guide Price*:
£90,000
 

8 Leonard Road, Gosport, Hampshire, PO12 4TU

Guide Price*:
£150,000
 

Bearwood, New Village, Freshwater, Isle Of Wight, PO40 9HU

Guide Price*:
£250,000
 

36-37 The Strand, Ryde, Isle of Wight, PO33 1JF

Guide Price*:
£650,000
 

13 Cumberland Mills Square, London, E14 3BH

Guide Price*:
£200,000
 

Flat 1, 26 Hervey Road, Kidbrooke, Greenwich, SE3 8BS

Guide Price*:
£270,000
 

26 Burnelli Building, 352 Queenstown Road, London, SW11 8NG

Guide Price*:
£395,000
 

52 Rye Hill Park, London, SE15 3JU

Guide Price*:
£180,000
 

Flat 4 Bateman House, Otto Street, London, SE17 3PF

Guide Price*:
£180,000
 

Flat 2, 140 Coldharbour Lane, London, Lambeth, SE5 9QH

Guide Price*:
£410,000
 

Mote Cottage, London Road, Wrotham, Sevenoaks, Kent, TN15 7RR

Guide Price*:
£300,000
 

24 Tidings Hill, Halstead, Essex, CO9 1BW

Guide Price*:
£180,000
 

Flat 2 Priory Mews, 44 Station Avenue, Southend-on-Sea, Essex, SS2 5EP

Guide Price*:
£125,000
 

48 Bull Road, Ipswich, Suffolk, IP3 8GP

Guide Price*:
£170,000
 

55 Eccles Way, Nottingham, Nottinghamshire, NG3 3DG

Guide Price*:
£85,000
 

Apartment 1, 40 Westgate Street, Nottingham, Nottinghamshire, NG3 3GA

Guide Price*:
£55,000
 

Apartment 208, 25 Simpson Street, Manchester, Lancashire, M4 4AS

Guide Price*:
£110,000
 

217 Capella House, Falcon Drive, Cardiff, South Glamorgan, CF10 4RE

Guide Price*:
£95,000
 

Colnside Cottage, Gloucester Road, Andoversford, Cheltenham, Gloucestershire, GL54 4HR

Guide Price*:
£220,000

How much is your property really worth?

Whether you’re looking to sell or let your property, we can provide you with a free, accurate valuation based on our expert knowledge and the latest trends in your local area.

Book a Valuation