Back to Property Listings

Rare opportunity to add value in a sought-after residential location.

Description

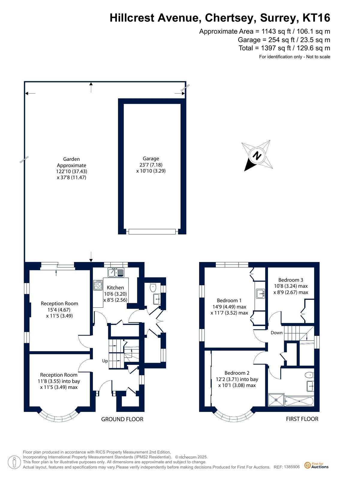
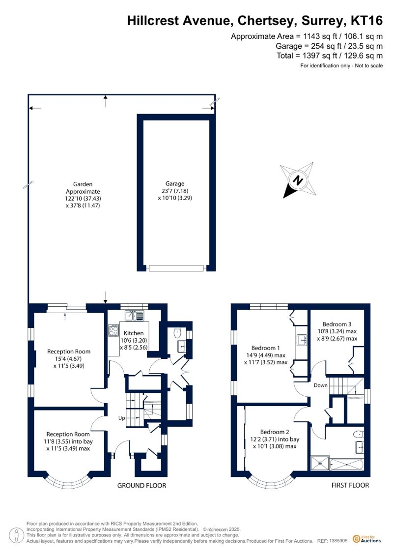
A vacant detached house set on a generous plot, offering great potential for improvement and extension (subject to planning permission). The property features mature front and rear gardens, a detached garage and ample off-street parking.

The accommodation includes two separate reception rooms, a functional kitchen, downstairs WC, three well-proportioned bedrooms and a family bathroom. The property requires modernisation throughout, presenting an excellent blank canvas for refurbishment, redesign or future development.

Situated in a sought-after residential area with easy access to local schools, amenities and transport links, this home combines space, location and significant scope to add value.

Auction
To be sold by online auction (unconditional) on Thursday 26th February 2026 with a 6 WEEK COMPLETION, bidding will open at 10.00.

Registration
All bidders/potential buyers are required to register ahead of the auction date to be able to bid/buy, please visit our website to setup an online auction account.

Tenure
Freehold with vacant possession

EPC rating
D

Council tax band
F - Runnymede

Legal pack
For each lot there are Special Conditions of Sale and other documentation provided by the vendor's solicitors. If you wish to receive the Legal Pack, you will be able to register for this via the link on our website. You will receive notification by email once the Legal Pack is received from the solicitor. The documents may not tell you everything you need to know about the property and you are required to complete your own due diligence before bidding.

Additional fees
A buyers charge of £1,500 including VAT is payable on each lot that you buy, in addition to the sale price. Please be aware there may be other additional fees, including disbursements contained in the legal pack payable on completion. Please ensure that you check the legal pack for each lot that you are interested in, prior to bidding.

Deposit
If you are the highest bidder when the auction ends, contracts are exchanged between you and the seller. Both parties are legally bound to complete the transaction as per the special conditions in the legal pack. Your card will be automatically debited for the bidder security amount of £6,000 and we'll require the remaining balance for a 10% non-refundable deposit. We will contact you after the auction has finished to make these arrangements.

Pre-auction offers
These must be made in writing and will only be considered if the Legal Pack has been inspected and proof of funding has been supplied to the auctioneers. Pre-auction offers are only considered on an auction basis in accordance with the “Terms & Conditions - Unconditional Auction".

Mortgage finance
We advise all bidders who require a mortgage to confirm with their Financial Advisor as to whether or not the lot you are interested in would be suitable security to borrow finance against, prior to bidding. If you need to arrange a mortgage it is important that you obtain an offer from your lender before the day of the auction. Most building societies and banks will instruct a surveyor to prepare a valuation report before making a mortgage offer.

* Generally speaking Guide Prices are provided as an indication of each seller's minimum expectation, i.e. 'The Reserve'. They are not necessarily figures which a property will sell for and may change at any time prior to the auction. Virtually every property will be offered subject to a Reserve (a figure below which the Auctioneer cannot sell the property during the auction) which we expect will be set within the Guide Range or no more than 10% above a single figure Guide.

38 Hillcrest Avenue, Chertsey, Surrey, KT16 9RE

Unconditional Online Auction Sale
Guide Price* £590,000

Loading the bidding panel...


Log in to view legal documents

Joint Agent


Agreement Documents


Further Details


Similar Properties

 

31 The Plantation, London, SE3 0AB

Guide Price*:
£450,000
 

Field View, Charndon, Bicester, Oxfordshire, OX27 0BL

Guide Price*:
£295,000
 

8 Marks Orchard, Granborough, Buckingham, Buckinghamshire, MK18 3QS

Guide Price*:
£550,000
 

61 Leechcroft Avenue, Swanley, Kent, BR8 8AP

Guide Price*:
£260,000
 

Pound Cottage, 66 Portsmouth Road, Guildford, Surrey, GU3 1HA

Guide Price*:
£295,000
 

22 Admiralty Way, Eastbourne, East Sussex, BN23 5PP

Guide Price*:
£310,000
 

159 The Greenway, Ickenham, Uxbridge, Middlesex, UB10 8LT

Guide Price*:
£230,000
 

42 Borland Road, Teddington, Middlesex, TW11 9HP

Guide Price*:
£255,000
 

G 05 Wallis House, Great West Road, Brentford, Middlesex, TW8 0HD

Guide Price*:
£230,000
 

3B Hillsborough Close, Oxford, Oxfordshire, OX4 3SN

Guide Price*:
£210,000
 

Bearwood, New Village, Freshwater, Isle Of Wight, PO40 9HU

Guide Price*:
£300,000
 

35 Crawley Drive, Hemel Hempstead, Hertfordshire, HP2 6BX

Guide Price*:
£250,000
 

24 Culdrose House, 1 Frederick Street, Aldershot, Hampshire, GU11 1LQ

Guide Price*:
£90,000
 

Flat 177 Sinclair House, Thanet Street, London, WC1H 9QA

Guide Price*:
£180,000
 

Apartment 114, The Linx, 10 Naples Street, Manchester, Lancashire, M4 4AR

Guide Price*:
£140,000
 

44 Wistaston Road, Crewe, Cheshire, CW2 7RE

Guide Price*:
£55,000
 

9A St. Georges Parade, Perry Hill, London, SE6 4DT

Guide Price*:
£190,000
 

Flat 19 Brixham Building, 8 Artillery Place, London, SE18 4AB

Guide Price*:
£200,000
 

Flat 2, 140 Coldharbour Lane, London, Lambeth, SE5 9QH

Guide Price*:
£410,000
 

Flat 11 Cygnet House, Bittern Close, Gosport, Hampshire, PO12 4JZ

Guide Price*:
£85,000
 

443A Princes Road, Dartford, Kent, DA1 1RB

Guide Price*:
£155,000
 

Flat 12A Foley Hall, 58-60 London Road, Reading, Berkshire, RG1 5AS

Guide Price*:
£65,000
 

Flat 22 Albon House, 3 Neville Gill Close, London, SW18 4BS

Guide Price*:
£240,000
 

Garage 50, Park Gardens, Christchurch, Dorset, BH23 3PQ

Guide Price*:
£8,000
 

Garage 51, Park Gardens, Christchurch, Dorset, BH23 3PQ

Guide Price*:
£8,000
 

1 Radstock Farm Cottages, Radstock Lane, Earley, Reading, Berkshire, RG6 5UN

Guide Price*:
£340,000
 

38 Hillcrest Avenue, Chertsey, Surrey, KT16 9RE

Guide Price*:
£590,000

How much is your property really worth?

Whether you’re looking to sell or let your property, we can provide you with a free, accurate valuation based on our expert knowledge and the latest trends in your local area.