Back to Property Listings

Spacious 3-Bed End of Terrace in Prime SE6 Location – Ideal for Families with Excellent Transport Links & Schools Nearby

Description

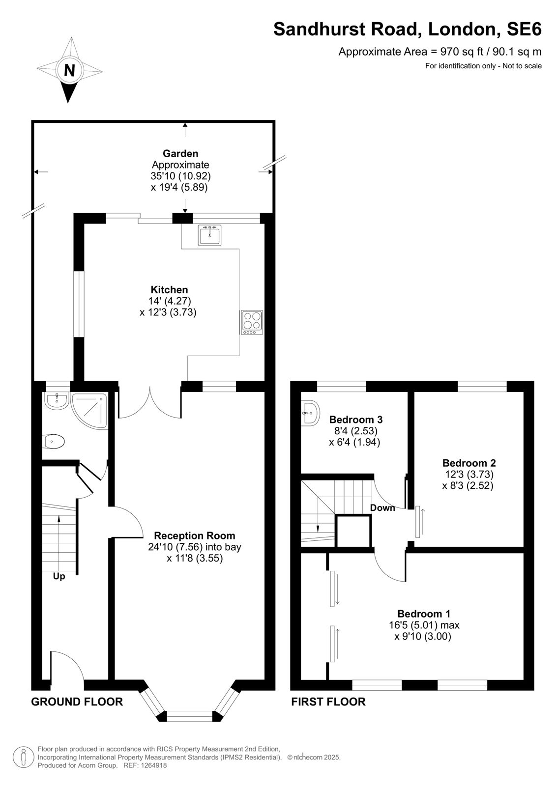
Located in a desirable residential area of SE6, this three-bedroom end of terrace property offers well-proportioned accommodation ideal for family living. The ground floor comprises a spacious 24'10 x 11'8 ft reception room, a kitchen/diner with direct access to the rear garden, and a convenient shower room. Upstairs, there are three bright and comfortable bedrooms.

The property is well situated for transport links, with Hither Green, Bellingham and Lee stations all nearby, offering regular services into Central London. Local amenities, shops and green spaces are within easy reach, and the area is well served by a number of highly regarded primary and secondary schools.

Auction
To be sold by online auction (unconditional) on Thursday 30th October 2025 with a 6 WEEK COMPLETION, bidding will open at 10.00.

Registration
All bidders/potential buyers are required to register ahead of the auction date to be able to bid/buy, please visit our website to setup an online auction account.

Tenure
Freehold with vacant possession

EPC rating
D

Council tax band
C - Lewisham

Legal pack
For each lot there are Special Conditions of Sale and other documentation provided by the vendor's solicitors. If you wish to receive the Legal Pack, you will be able to register for this via the link on our website. You will receive notification by email once the Legal Pack is received from the solicitor. The documents may not tell you everything you need to know about the property and you are required to complete your own due diligence before bidding.

Guide Prices
Guide Prices are provided as an indication of each seller's minimum expectation. They are not necessarily figures which a lot will sell for and may change at any time prior to the auction. Each lot will be offered subject to a Reserve, (a figure below which the Auctioneer cannot sell the lot during the auction) which we expect will be set within the Guide Range, or no more than 10% above a single figure Guide Price.

Additional fees
A buyers charge of £1,500 including VAT is payable on each lot that you buy, in addition to the sale price. Please be aware there may be other additional fees, including disbursements contained in the legal pack payable on completion. Please ensure that you check the legal pack for each lot that you are interested in, prior to bidding.

Deposit
If you are the highest bidder when the auction ends, contracts are exchanged between you and the seller. Both parties are legally bound to complete the transaction as per the special conditions in the legal pack. Your card will be automatically debited for the bidder security amount of £6,000 and we'll require the remaining balance for a 10% non-refundable deposit. We will contact you after the auction has finished to make these arrangements.

Pre-auction offers
These must be made in writing and will only be considered if the Legal Pack has been inspected and proof of funding has been supplied to the auctioneers. Pre-auction offers are only considered on an auction basis in accordance with the “Terms & Conditions - Unconditional Auction".

Mortgage finance
We advise all bidders who require a mortgage to confirm with their Financial Advisor as to whether or not the lot you are interested in would be suitable security to borrow finance against, prior to bidding. If you need to arrange a mortgage it is important that you obtain an offer from your lender before the day of the auction. Most building societies and banks will instruct a surveyor to prepare a valuation report before making a mortgage offer.

* Generally speaking Guide Prices are provided as an indication of each seller's minimum expectation, i.e. 'The Reserve'. They are not necessarily figures which a property will sell for and may change at any time prior to the auction. Virtually every property will be offered subject to a Reserve (a figure below which the Auctioneer cannot sell the property during the auction) which we expect will be set within the Guide Range or no more than 10% above a single figure Guide.

158 Sandhurst Road, London, SE6 1XD

Unconditional Online Auction Sale
Guide Price* £380,000

Loading the bidding panel...


Log in to view legal documents

Joint Agent


Agreement Documents


Further Details


Similar Properties

 

Meridi, Lock Avenue, Maidenhead, Berkshire, SL6 8JW

Guide Price*:
£550,000
 

Dalma, Pinkneys Drive, Maidenhead, Berkshire, SL6 6QD

Guide Price*:
£600,000
 

7 Claremont Road, Windsor, Berkshire, SL4 3AX

Guide Price*:
£750,000
 

8 Claremont Road, Windsor, Berkshire, SL4 3AX

Guide Price*:
£275,000
 

20 Aston Mead, Windsor, Berkshire, SL4 5PW

Guide Price*:
£435,000
 

Flat 76 Regents Riverside, Brigham Road, Reading, Berkshire, RG1 8QS

Guide Price*:
£225,000
 

105 Belmont Road, Reading, Berkshire, RG30 2UY

Guide Price*:
£210,000
 

12 Montfort Gate, Caversham, Reading, Berkshire, RG4 6AD

Guide Price*:
£390,000
 

27 Warren Down, Bracknell, Berkshire, RG42 1WD

Guide Price*:
£100,000
 

45 Naseby, Bracknell, Berkshire, RG12 7HD

Guide Price*:
£130,000
 

26 Brunswick, Bracknell, Berkshire, RG12 7YY

Guide Price*:
£250,000
 

Flat 1 Fairways House, London Road, Sunningdale, Ascot, Berkshire, SL5 0EY

Guide Price*:
£350,000
 

21 Dennis Way, Slough, Berkshire, SL1 5JS

Guide Price*:
£450,000
 

20 Oxford Road, Owlsmoor, Sandhurst, Berkshire, GU47 0TR

Guide Price*:
£285,000
 

Cedar Wood Cottage, 23 Mill Street, Islip, Kidlington, Oxfordshire, OX5 2SY

Guide Price*:
£250,000
 

22 Hazelrig Drive, Thame, Oxfordshire, OX9 3XL

Guide Price*:
£130,000
 

5 Folly View Road, Faringdon, Oxfordshire, SN7 7DL

Guide Price*:
£275,000
 

546 Cricklade Road, Swindon, Wiltshire, SN2 7AQ

Guide Price*:
£180,000
 

80 High Street, Old Woking, Woking, Surrey, GU22 9LN

Guide Price*:
£265,000
 

56 Common Road, Claygate, Esher, Surrey, KT10 0HJ

Guide Price*:
£270,000
 

15 Elm Road, New Malden, Surrey, KT3 3HB

Guide Price*:
£400,000
 

68 Hare Hill, Addlestone, Surrey, KT15 1DN

Guide Price*:
£500,000
 

27 Highclere Road, Aldershot, Hampshire, GU12 4EQ

Guide Price*:
£200,000
 

24 Beaumont Grove, Aldershot, Hampshire, GU11 1YH

Guide Price*:
£210,000
 

34 Marshcourt, Lychpit, Basingstoke, Hampshire, RG24 8UY

Guide Price*:
£365,000
 

Flat 408 Churchill Place, Churchill Way, Basingstoke, Hampshire, RG21 7AA

Guide Price*:
£100,000
 

143 Northern Parade, Portsmouth, Hampshire, PO2 9PE

Guide Price*:
£100,000
 

48 Meyrick Road, Portsmouth, Hampshire, PO2 8JP

Guide Price*:
£180,000
 

41 Posbrooke Road, Southsea, Hampshire, PO4 8JJ

Guide Price*:
£190,000
 

17 Fairhome Close, Gosport, Hampshire, PO12 4HZ

Guide Price*:
£145,000
 

6 Larkspur Gardens, Holbury, Southampton, Hampshire, SO45 2QH

Guide Price*:
£290,000
 

Basement Flat, 26 St Johns Road, Ryde, Isle of Wight, PO33 2RN

Guide Price*:
£65,000
 

Basement Flat, 6 Clarence Square, Brighton, East Sussex, BN1 2ED

Guide Price*:
£320,000
 

27 Gorleston Road, Birmingham, West Midlands, B14 4NR

Guide Price*:
£140,000
 

109 Gravel Road, Bromley, Kent, BR2 8PW

Guide Price*:
£580,000
 

Apartment 46 The Bayley, 21 New Bailey Street, Salford, Lancashire, M3 5AX

Guide Price*:
£80,000
 

32 Vernon Drive, Harefield, Uxbridge, Middlesex, UB9 6EG

Guide Price*:
£400,000
 

645 Western Boulevard, Nottingham, Nottinghamshire, NG8 5GR

Guide Price*:
£90,000
 

24 Meadowbank, Watford, Hertfordshire, WD19 4NP

Guide Price*:
£590,000
 

1 Wilcox Avenue, Mansfield Woodhouse, Mansfield, Nottinghamshire, NG19 8HD

Guide Price*:
£90,000
 

Flat 9 Streatleigh Court, Streatham High Road, London, SW16 1EG

Guide Price*:
£250,000
 

37 Highters Heath Lane, Birmingham, West Midlands, B14 4LX

Guide Price*:
£160,000
 

47A Cannon Lane, Pinner, Middlesex, HA5 1HN

Guide Price*:
£550,000
 

147B Uxbridge Road, London, W13 9AU

Guide Price*:
£160,000
 

Flat 2 Palace Court, Watling Street, Chatham, Kent, ME5 7ES

Guide Price*:
£100,000
 

45 Ada Road, Yardley, Birmingham, West Midlands, B25 8DD

Guide Price*:
£140,000
 

11 Westways, York Road, Northwood, Middlesex, HA6 1JN

Guide Price*:
£185,000
 

106 The Woodlands, London, SE19 3EH

Guide Price*:
£180,000
 

17A Bridge Street, Buckingham, Buckinghamshire, MK18 1AF

Guide Price*:
£115,000
 

12 Stadium Approach, Aylesbury, Buckinghamshire, HP21 9EX

Guide Price*:
£140,000
 

Flat 18 Michael Faraday House, Beaconsfield Road, London, SE17 2TR

Guide Price*:
£250,000
 

Loft 2 The Guildhall Tavern, Guildhall Place, Cardiff, South Glamorgan, CF10 1EB

Guide Price*:
£65,000
 

417 Westhorne Avenue, London, SE12 9AB

Guide Price*:
£620,000
 

Apartment 60 Caminada House, 3 St. Lawrence Street, Manchester, Lancashire, M15 4DY

Guide Price*:
£90,000
 

474 Mansfield Road, Nottingham, Nottinghamshire, NG5 2EL

Guide Price*:
£270,000
 

29 Mill Street, Worcester, Worcestershire, WR1 2NH

Guide Price*:
£140,000
 

27 Mill Street, Worcester, Worcestershire, WR1 2NH

Guide Price*:
£140,000
 

Flat 84 Block 2 The Hicking Building, Queens Road, Nottingham, Nottinghamshire, NG2 3AT

Guide Price*:
£70,000
 

Apartment 7 Cumberland Point, 46A Cumberland Avenue, Swinton, Manchester, Lancashire, M27 8HN

Guide Price*:
£110,000
 

17 Barnfield, Iver, Buckinghamshire, SL0 0AL

Guide Price*:
£210,000
 

Flat 62 Coppermill Heights, Mill Mead Road, London, N17 9FH

Guide Price*:
£275,000
 

19 Pembroke Street, Bedford, Bedfordshire, MK40 3RH

Guide Price*:
£310,000
 

83 Firth Drive, Birmingham, West Midlands, B14 4DL

Guide Price*:
£150,000
 

Homely, Chelsfield Lane, Orpington, Kent, BR6 7RR

Guide Price*:
£420,000
 

294 Milwards, Harlow, Essex, CM19 4SN

Guide Price*:
£180,000
 

108 The Avenue, Pinner, Middlesex, HA5 5BJ

Guide Price*:
£590,000
 

158 Sandhurst Road, London, SE6 1XD

Guide Price*:
£380,000
 

146 Tower Road, Boston, Lincolnshire, PE21 9BB

Guide Price*:
£115,000
 

106 Dickens Avenue, Uxbridge, Middlesex, UB8 3DN

Guide Price*:
£390,000

How much is your property really worth?

Whether you’re looking to sell or let your property, we can provide you with a free, accurate valuation based on our expert knowledge and the latest trends in your local area.