Back to Property Listings

3 bedroom end of terrace house - Ideal letting investment with an estimated rent of £2,500 PCM, gross yield 10.34% PAX

Description

A 3 bedroom end of terrace house in Brandram Road, a sought after location in the middle of Lewisham and Blackheath, providing good transport links with DLR access from Lewisham in Zone 2. Ideal letting investment with an estimated rent of £2,500 PCM, gross yield 10.34% PAX. The property is leasehold with 33 years remaining and only suitable for cash buyers.

Auction date
To be sold by online auction on Friday 16th December 2022 with a 6 WEEK COMPLETION, bidding will open at 10.00.

To view
Viewings will be conducted prior to the auction, please visit our website to book an appointment at firstforauctions.co.uk

Registration
All bidders/potential buyers are required to register ahead of the auction date to be able to bid/buy, please visit our website to setup an online auction account.

Location
* Close to local schools and amenities * Good access to Blackheath Village * DLR access from Lewisham in Zone 2 * M25 access via A20

Description
* End of terrace house * 3 bedrooms * Cash buyers only

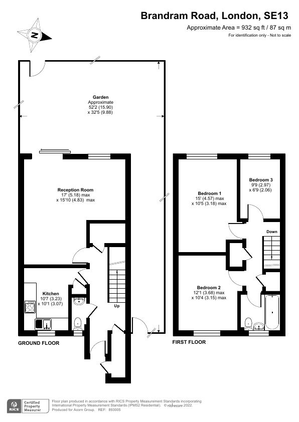
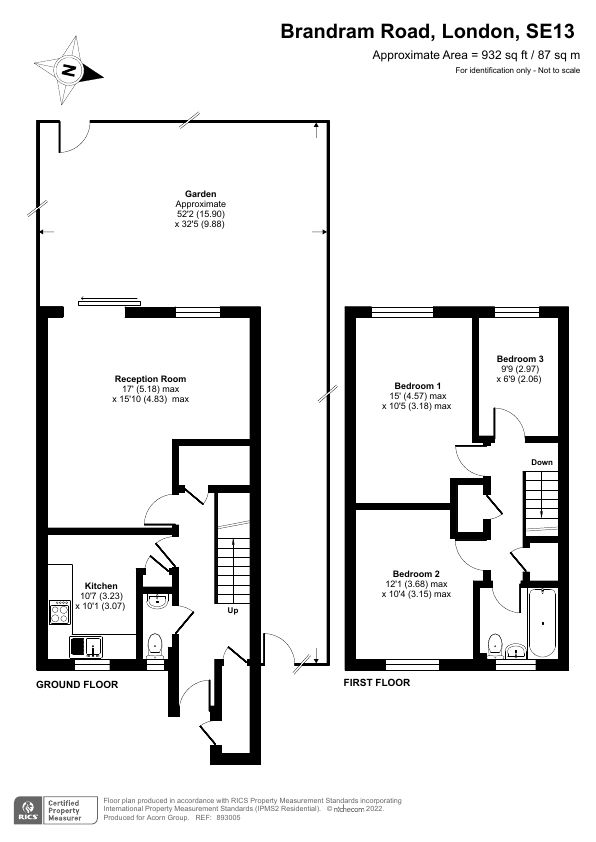
Accommodation
Comprises:

Ground floor
Entrance hall, living room, dining room, kitchen

First floor
3 bedrooms, bathroom

Outside
Front and rear garden with driveway parking

EPC rating
D

Tenure
Leasehold with vacant possession

Lease
80 years from 29 September 1976 - 33 years remaining. The freeholder has quoted a premium of £164,928 to extend the lease, further details available in the legal pack.

Ground rent
£10 per annum, please see legal pack for further details.

Council tax band
D - London Borough of Lewisham

Legal pack
For each lot there are Special Conditions of Sale and other documentation provided by the vendor’s solicitors. If you wish to receive the Legal Pack, you will be able to register for this via the link on our website. You will receive notification by email once the Legal Pack is received from the solicitor.

Additional fees
A buyers charge of £1,200 including VAT is payable on each lot that you buy, in addition to the sale price. Please be aware there may be other additional fees, including disbursements contained in the legal pack payable on completion. Please ensure that you check the legal pack for each lot that you are interested in, prior to bidding.

* Generally speaking Guide Prices are provided as an indication of each seller's minimum expectation, i.e. 'The Reserve'. They are not necessarily figures which a property will sell for and may change at any time prior to the auction. Virtually every property will be offered subject to a Reserve (a figure below which the Auctioneer cannot sell the property during the auction) which we expect will be set within the Guide Range or no more than 10% above a single figure Guide.

Lot 8 - 18 Brandram Road, Lewisham, London, SE13 5EA

Unconditional Online Auction Sale
Guide Price* £290,000

Loading the bidding panel...


Agreement Documents


Further Details


Similar Properties

LOT 1
 

57 Tockley Road, Burnham, Slough, Buckinghamshire, SL1 7DQ

Guide Price*:
£200,000
LOT 2
 

2 High Copse Farm Cottages, Hyde End Road, Shinfield, Reading, Berkshire, RG2 9ES

Guide Price*:
£255,000
LOT 3
 

2 Church Cottages, Church Lane, Bledlow Ridge, High Wycombe, Buckinghamshire, HP14 4AX

Guide Price*:
£300,000
LOT 4
 

1 High Copse Farm Cottages, Hyde End Road, Shinfield, Reading, Berkshire, RG2 9ES

Guide Price*:
£150,000
LOT 5
 

20 Southampton Street, Farnborough, Hampshire, GU14 6AX

Guide Price*:
£365,000
LOT 6
 

4 Ilbury Close, Shinfield, Reading, Berkshire, RG2 9DE

Guide Price*:
£150,000
LOT 7
 

100 Lime Walk, Headington, Oxford, Oxfordshire, OX3 7AF

Guide Price*:
£365,000
LOT 8
 

17 Malvern Court Addington Road, Reading, Berkshire, RG1 5PL

Guide Price*:
£130,000
LOT 9
 

48 Bull Road, Ipswich, Suffolk, IP3 8GP

Guide Price*:
£170,000
LOT 10
 

Flat 4 Appleby House, 6 Derby Road, Caversham, Reading, Berkshire, RG4 5EY

Guide Price*:
£135,000
LOT 11
 

102 Boyn Hill Road, Maidenhead, Windsor and Maidenhead, SL6 4HT

Guide Price*:
£300,000
LOT 12
 

Flat 11 Campion House, Jocks Lane, Bracknell, Berkshire, RG42 1PG

Guide Price*:
£75,000
LOT 13
 

13 Tewkesbury Close, Basingstoke, Hampshire, RG24 9DU

Guide Price*:
£50,000
LOT 14
 

Flat 11 Lundy House, Drake Way, Reading, Berkshire, RG2 0GQ

Guide Price*:
£130,000
LOT 15
 

The Bungalow, Binfield Heath, Henley-on-Thames, Oxfordshire, RG9 4JT

Guide Price*:
£450,000
LOT 16
 

Flat 7 Sourton House, Battle Square, Reading, Berkshire, RG30 1DS

Guide Price*:
£155,000
LOT 17
 

Flat 3 Aragon House, 21 Yeovil Road, Farnborough, Hampshire, GU14 6EX

Guide Price*:
£115,000
LOT 18
 

10 Sefton House, Grosvenor Road, Aldershot, Hampshire, GU11 3DW

Guide Price*:
£75,000
LOT 19
 

12 Holyrood Avenue, Harrow, Middlesex, HA2 8TP

Guide Price*:
£390,000
LOT 20
 

13 Cumberland Mills Square, London, E14 3BH

Guide Price*:
£200,000
LOT 21
 

86 Canning Road, Harrow, Middlesex, HA3 7SN

Guide Price*:
£450,000
LOT 22
 

4 Park Row, London, SE10 9NG

Guide Price*:
£1,230,000
LOT 23
 

2 Ivy House Cottage, 58 Ivy House Road, Ickenham, Uxbridge, Middlesex, UB10 8LZ

Guide Price*:
£140,000
LOT 24
 

Flat 4 Bateman House, Otto Street, London, SE17 3PF

Guide Price*:
£180,000
LOT 25
 

25 Seymour Gardens, Ruislip, Middlesex, HA4 9QA

Guide Price*:
£185,000
LOT 26
 

12 Mead Lane, Farnham, Surrey, GU9 7DY

Guide Price*:
£210,000
LOT 27
 

12B Station Parade, Whitchurch Lane, Edgware, Middlesex, HA8 6RW

Guide Price*:
£140,000
LOT 28
 

Flat 2 Priory Mews, 44 Station Avenue, Southend-on-Sea, Essex, SS2 5EP

Guide Price*:
£125,000
LOT 29
 

24 Tidings Hill, Halstead, Essex, CO9 1BW

Guide Price*:
£170,000
LOT 30
 

Mote Cottage, London Road, Wrotham, Sevenoaks, Kent, TN15 7RR

Guide Price*:
£300,000
LOT 31
 

52 Rye Hill Park, London, SE15 3JU

Guide Price*:
£170,000
LOT 32
 

Flat 26 Cromwell Place, 144-146 Station Road, Redhill, Surrey, RH1 1EX

Guide Price*:
£140,000
LOT 33
 

Flat 3 Waterford Court, Leeland Terrace, London, W13 9HL

Guide Price*:
£275,000
LOT 34
 

4 Kirtley Road, London, SE26 4TL

Guide Price*:
£360,000
LOT 35
 

Flat 1 Broadlands Court, Broadlands Road, Bromley, Kent, BR1 5DF

Guide Price*:
£200,000
LOT 36
 

Flat 17 Tulk House, Ottershaw Park, Ottershaw, Chertsey, Surrey, KT16 0QG

Guide Price*:
£320,000
LOT 37
 

120 Ferry Road, Marston, Oxford, Oxfordshire, OX3 0EX

Guide Price*:
£410,000
LOT 38
 

Flat 13 Kennedy House, Orchard Way, Banbury, Oxfordshire, OX16 0EL

Guide Price*:
£85,000
LOT 39
 

3 Brasenose Driftway, Oxford, Oxfordshire, OX4 2QX

Guide Price*:
£300,000
LOT 40
 

132 Broughton Road, Banbury, Oxfordshire, OX16 9QQ

Guide Price*:
£180,000
LOT 41
 

Colnside Cottage, Gloucester Road, Andoversford, Cheltenham, Gloucestershire, GL54 4HR

Guide Price*:
£200,000
LOT 42
 

16 Avenue Road, Sileby, Loughborough, Leicestershire, LE12 7PG

Guide Price*:
£130,000
LOT 43
 

Apartment 208, 25 Simpson Street, Manchester, Lancashire, M4 4AS

Guide Price*:
£100,000
LOT 44
 

Apartment 1, 40 Westgate Street, Nottingham, Nottinghamshire, NG3 3GA

Guide Price*:
£55,000
LOT 45
 

Apartment 21 Alexandra House, 47 Rutland Street, Leicester, Leicestershire, LE1 1SE

Guide Price*:
£50,000
LOT 46
 

55 Eccles Way, Nottingham, Nottinghamshire, NG3 3DG

Guide Price*:
£80,000
LOT 47
 

30 Sandmere Road, Birmingham, West Midlands, B14 4JB

Guide Price*:
£160,000
LOT 48
 

259 Woodborough Road, Nottingham, Nottinghamshire, NG3 4JZ

Guide Price*:
£230,000
LOT 49
 

97 Cofton Road, Birmingham, West Midlands, B31 3QT

Guide Price*:
£90,000
LOT 50
 

361 Alton Street, Crewe, Cheshire, CW2 7RT

Guide Price*:
£110,000
LOT 51
 

Flat, 2, The Parade, Caterways, Horsham, West Sussex, RH12 2AL

Guide Price*:
£70,000
LOT 52
 

52 Barn Piece, Chandler's Ford, Eastleigh, Hampshire, SO53 4HP

Guide Price*:
£260,000
LOT 53
 

7 Whinchat Close, Fareham, Hampshire, PO15 6LR

Guide Price*:
£190,000
LOT 54
 

18 Freemantle Road, Gosport, Hampshire, PO12 4RD

Guide Price*:
£130,000
LOT 55
 

6 Jade Mews, 62 Kingston Road, Portsmouth, Hampshire, PO2 7PE

Guide Price*:
£90,000
LOT 56
 

8 Leonard Road, Gosport, Hampshire, PO12 4TU

Guide Price*:
£150,000
LOT 57
 

Flat 37 Berkeley Court, The Esplanade, Bognor Regis, West Sussex, PO21 1LX

Guide Price*:
£150,000
LOT 58
 

St. Crispins, Queens Road, Freshwater, Isle Of Wight, PO40 9ES

Guide Price*:
£140,000
LOT 59
 

10 Aylett Close, Brading, Sandown, Isle Of Wight, PO36 0AP

Guide Price*:
£120,000
LOT 60
 

36-37 The Strand, Ryde, Isle of Wight, PO33 1JF

Guide Price*:
£650,000
LOT 61
 

29 Bettesworth Road, Ryde, Isle Of Wight, PO33 3EP

Guide Price*:
£100,000
LOT 62
 

28 Clos Hendre, Cardiff, South Glamorgan, CF14 6PN

Guide Price*:
£110,000
LOT 68
 

9 Fryers Court Eaton Avenue, High Wycombe, Buckinghamshire, HP12 3AT

Guide Price*:
£90,000
 

Johnsons Farm, Bellingdon, Chesham, Buckinghamshire, HP5 2XW

Guide Price*:
£590,000

How much is your property really worth?

Whether you’re looking to sell or let your property, we can provide you with a free, accurate valuation based on our expert knowledge and the latest trends in your local area.

Book a Valuation