Back to Property Listings

Prime Oxford development opportunity

Description

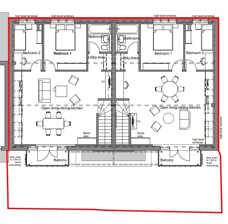
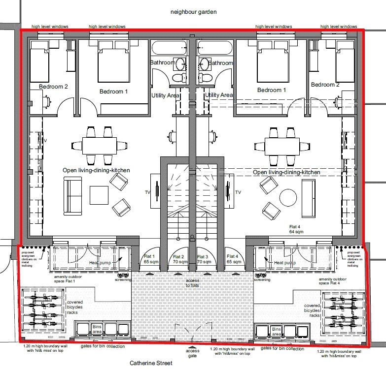
A rare opportunity to acquire an industrial building located in a popular residential area, offered with detailed planning consent for conversion to x4 two-bedroom apartments, each with private balconies or small gardens.

Planning permission has been granted. Application reference 23/00292/FUL, with initial works already commenced by the current owners, providing a head start for development.

The property is situated in the highly sought-after area of East Oxford, known for its vibrant mix of independent cafés, restaurants, pubs and local shops, as well as a nearby arts centre and independent cinema. Oxford city centre lies less than a mile away, offering extensive cultural, educational and retail amenities.

This is an excellent opportunity for developers and investors to deliver a well-located residential scheme in a strong and consistently in-demand area.

Auction
To be sold by online auction (unconditional) on Thursday 28th May 2026 with a 6 WEEK COMPLETION, bidding will open at 10.00.

Registration
All bidders/potential buyers are required to register ahead of the auction date to be able to bid/buy, please visit our website to setup an online auction account.

Tenure
Freehold with vacant possession.

EPC rating
To be confirmed.

Local authority
Oxford

Legal pack
For each lot there are Special Conditions of Sale and other documentation provided by the vendor's solicitors. If you wish to receive the Legal Pack, you will be able to register for this via the link on our website. You will receive notification by email once the Legal Pack is received from the solicitor. The documents may not tell you everything you need to know about the property and you are required to complete your own due diligence before bidding.

Additional fees
A buyers charge of £1,650 including VAT is payable on each lot that you buy, in addition to the sale price. Please be aware there may be other additional fees, including disbursements contained in the legal pack payable on completion. Please ensure that you check the legal pack for each lot that you are interested in, prior to bidding.

Deposit
If you are the highest bidder when the auction ends, contracts are exchanged between you and the seller. Both parties are legally bound to complete the transaction as per the special conditions in the legal pack. Your card will be automatically debited for the bidder security amount of £6,000 and we'll require the remaining balance for a 10% non-refundable deposit. We will contact you after the auction has finished to make these arrangements.

Pre-auction offers
These must be made in writing and will only be considered if the Legal Pack has been inspected and proof of funding has been supplied to the auctioneers. Pre-auction offers are only considered on an auction basis in accordance with the “Terms & Conditions - Unconditional Auction".

Mortgage finance
We advise all bidders who require a mortgage to confirm with their Financial Advisor as to whether or not the lot you are interested in would be suitable security to borrow finance against, prior to bidding. If you need to arrange a mortgage it is important that you obtain an offer from your lender before the day of the auction. Most building societies and banks will instruct a surveyor to prepare a valuation report before making a mortgage offer.

Please note
All plans are strictly for identification purposes only and should not be relied upon. Please refer to the legal pack for the Land Registry plan of each lot. Any plans are reproduced from Ordnance Survey maps with kind permission of the Controller of His Majesty’s Stationery Office @ Crown copyright. All rights reserved, Licence no: 100020449. 

* Generally speaking Guide Prices are provided as an indication of each seller's minimum expectation, i.e. 'The Reserve'. They are not necessarily figures which a property will sell for and may change at any time prior to the auction. Virtually every property will be offered subject to a Reserve (a figure below which the Auctioneer cannot sell the property during the auction) which we expect will be set within the Guide Range or no more than 10% above a single figure Guide.

45 Catherine Street, Oxford, Oxfordshire, OX4 3AH

Unconditional Online Auction Sale
Guide Price* £430,000

Loading the bidding panel...


Log in to view legal documents

Joint Agent


Agreement Documents


Further Details


Similar Properties

 

Johnsons Farm, Bellingdon, Chesham, Buckinghamshire, HP5 2XW

Guide Price*:
£590,000
 

Apartment 20a, Quay 5, 232 Ordsall Lane, Salford, Lancashire, M5 3NB

Guide Price*:
£130,000
 

45 Catherine Street, Oxford, Oxfordshire, OX4 3AH

Guide Price*:
£430,000
 

First Floor Flat, 1 Manwood Road, London, Lewisham, SE4 1AA

Guide Price*:
£425,000

How much is your property really worth?

Whether you’re looking to sell or let your property, we can provide you with a free, accurate valuation based on our expert knowledge and the latest trends in your local area.

Book a Valuation