Back to Property Listings

* Exceptional Development Opportunity * Planning for 2 detached houses

Description

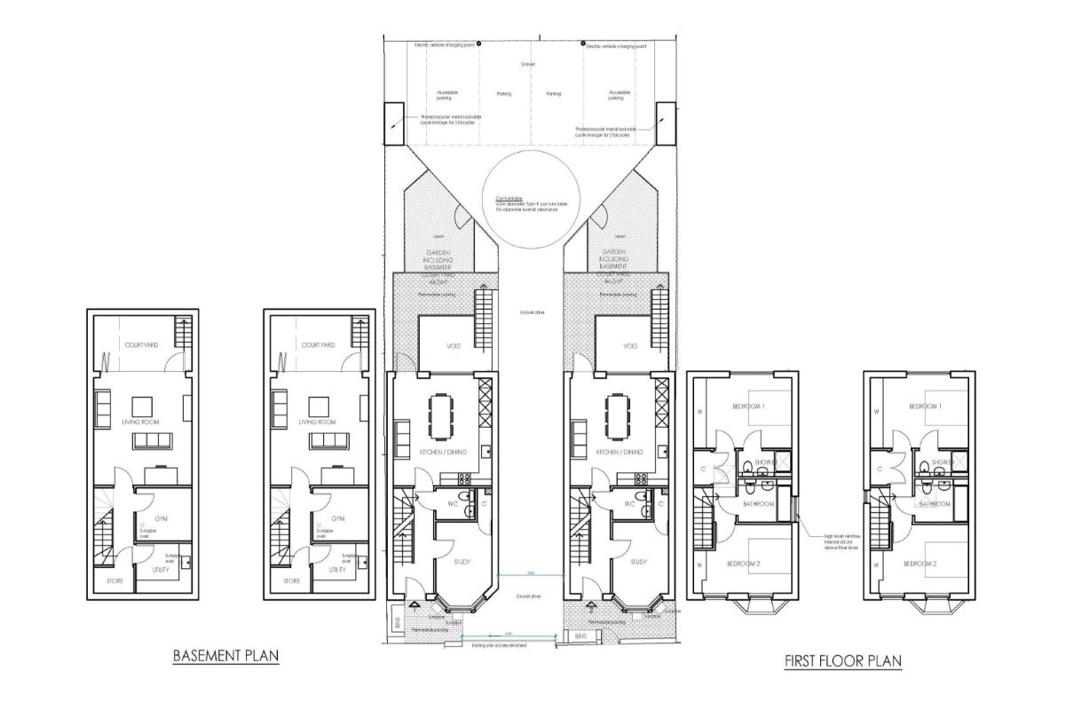
A rare and exciting opportunity to acquire a prime parcel of land in the highly sought-after Teddington area, with full planning permission granted for two stunning detached homes. These thoughtfully designed residences will measure approximately 135 sq m or 1,453 sq ft each and will offer an exceptional blend of contemporary living and functional space.

The planned properties will feature two well-proportioned bedrooms on the first floor, while the ground floor will boast an open-plan kitchen and dining area, a dedicated study, and a convenient WC. On the lower ground floor, residents will enjoy a spacious living room, a private gym, and a utility room with direct access to a secluded courtyard, providing an intimate outdoor retreat.

Nestled in the London Borough of Richmond upon Thames, Teddington is renowned for its charming riverside setting, excellent schools, and vibrant high street, offering an array of boutique shops, cafes, and restaurants. The land is ideally located within easy reach of Bushy Park, the River Thames, and excellent transport links, including Teddington Station, providing swift connections to central London.

This is a unique chance to create two beautifully designed homes in one of South West London’s most desirable locations - perfect for developers or investors looking for a premium project in an area with strong demand.

Auction
To be sold by online auction (unconditional) on Wednesday 30th April 2025 with a 6 WEEK COMPLETION, bidding will open at 10.00.

Registration
All bidders/potential buyers are required to register ahead of the auction date to be able to bid/buy, please visit our website to setup an online auction account.

Tenure
Freehold with vacant possession

Planning
Planning permission was granted on 10 November 2022 for the demolition of an existing garage and ancillary outbuildings on garden land and the construction of 2 new detached houses at land to the rear of 256-258 Kingston Road, Lindum Road, Teddington TW11 9DR in accordance with the terms of the application, Reference: 20/0969/FUL, dated 1 April 2020, and subject to the conditions set out in the Schedule to this decision.

Site
Site measures approximately 3,920 sq. ft. (364.27 sq. m), frontage 26.26 m, depth 54.44 m.

EPC rating
Exempt.

Council
London Borough of Richmond upon Thames

Legal pack
For each lot there are Special Conditions of Sale and other documentation provided by the vendor's solicitors. If you wish to receive the Legal Pack, you will be able to register for this via the link on our website. You will receive notification by email once the Legal Pack is received from the solicitor. The documents may not tell you everything you need to know about the property and you are required to complete your own due diligence before bidding.

Additional fees
A buyers charge of £1,500 including VAT is payable on each lot that you buy, in addition to the sale price. Please be aware there may be other additional fees, including disbursements contained in the legal pack payable on completion. Please ensure that you check the legal pack for each lot that you are interested in, prior to bidding.

Deposit
If you are the highest bidder when the auction ends, contracts are exchanged between you and the seller. Both parties are legally bound to complete the transaction as per the special conditions in the legal pack. Your card will be automatically debited for the bidder security amount of £6,000 and we'll require the remaining balance for a 10% non-refundable deposit. We will contact you after the auction has finished to make these arrangements.

Pre-auction offers
These must be made in writing and will only be considered if the Legal Pack has been inspected and proof of funding has been supplied to the auctioneers. Pre-auction offers are only considered on an auction basis in accordance with the “Terms & Conditions - Unconditional Auction".

Please note
All plans are strictly for identification purposes only and should not be relied upon. Please refer to the legal pack for the Land Registry plan of each lot. Any plans are reproduced from Ordnance Survey maps with kind permission of the Controller of Her Majesty's Stationery Office @ Crown copyright. All rights reserved, Licence no: 100020449.

* Generally speaking Guide Prices are provided as an indication of each seller's minimum expectation, i.e. 'The Reserve'. They are not necessarily figures which a property will sell for and may change at any time prior to the auction. Virtually every property will be offered subject to a Reserve (a figure below which the Auctioneer cannot sell the property during the auction) which we expect will be set within the Guide Range or no more than 10% above a single figure Guide.

Lot 13 - Land at 26-28 Lindum Road, Teddington, Middlesex, TW11 9DR

Unconditional Online Auction Sale
Guide Price* £495,000

Loading the bidding panel...


Joint Agent


Agreement Documents


Similar Properties

LOT 1
 

Flat 3, 11 St. Lukes Road, Maidenhead, Berkshire, SL6 7AJ

Guide Price*:
£80,000
LOT 2
 

20 New Road, Sandhurst, Berkshire, GU47 8EG

Guide Price*:
£275,000
LOT 3
 

56 Queens Road, Caversham, Reading, Berkshire, RG4 8DL

Guide Price*:
£230,000
LOT 4
 

105 Beech Lane, Earley, Reading, Berkshire, RG6 5QD

Guide Price*:
£390,000
LOT 5
 

92 Cannock Way, Lower Earley, Reading, Berkshire, RG6 4EF

Guide Price*:
£80,000
LOT 6
 

105 Belmont Road, Reading, Berkshire, RG30 2UY

Guide Price*:
£210,000
LOT 7
 

Flat 37 Imperial Court, Imperial Road, Windsor, Berkshire, SL4 3RE

Guide Price*:
£165,000
LOT 8
 

12 Keldholme, Bracknell, Berkshire, RG12 7RP

Guide Price*:
£250,000
LOT 9
 

Flat 1 Fairways House, London Road, Sunningdale, Ascot, Berkshire, SL5 0EY

Guide Price*:
£350,000
LOT 10
 

Holly Tree Cottage, Lyne Lane, Lyne, Chertsey, Surrey, KT16 0AW

Guide Price*:
£450,000
LOT 11
 

13 Brocks Drive, Fairlands, Guildford, Surrey, GU3 3ND

Guide Price*:
£350,000
LOT 13
 

26 Bayswater Road, Headington, Oxford, Oxfordshire, OX3 9NY

Guide Price*:
£210,000
LOT 14
 

9 Greys Hill, Henley-on-Thames, Oxfordshire, RG9 1SL

Guide Price*:
£390,000
LOT 15
 

29 Hitchmans Drive, Chipping Norton, Oxfordshire, OX7 5BG

Guide Price*:
£220,000
LOT 16
 

5 Folly View Road, Faringdon, Oxfordshire, SN7 7DL

Guide Price*:
£275,000
LOT 17
 

97 Drake Road, Harrow, Middlesex, HA2 9DZ

Guide Price*:
£430,000
LOT 18
 

7 Chudleigh Way, Ruislip, Middlesex, HA4 8TR

Guide Price*:
£365,000
LOT 19
 

201 Thirlmere Gardens, Northwood, Middlesex, HA6 2GA

Guide Price*:
£130,000
LOT 20
 

32 Vernon Drive, Harefield, Uxbridge, Middlesex, UB9 6EG

Guide Price*:
£350,000
LOT 21
 

23 Garden Close, Ruislip, Middlesex, HA4 6DB

Guide Price*:
£180,000
LOT 22
 

40B Viceroy Court, High Street South, Dunstable, Bedfordshire, LU6 3HW

Guide Price*:
£25,000
LOT 23
 

Flat 3, 94 Madeley Road, Ealing, Ealing, W5 2LX

Guide Price*:
£285,000
LOT 24
 

Flat 5 Milton Court, Spring Grove, Gravesend, Kent, DA12 1ND

Guide Price*:
£110,000
LOT 25
 

147B Uxbridge Road, London, W13 9AU

Guide Price*:
£120,000
LOT 26
 

158 Sandhurst Road, London, SE6 1XD

Guide Price*:
£380,000
LOT 27
 

Flat 23 Cresta House, 133 Finchley Road, London, NW3 6HT

Guide Price*:
£545,000
LOT 28
 

417 Westhorne Avenue, London, SE12 9AB

Guide Price*:
£590,000
LOT 29
 

109 Gravel Road, Bromley, Kent, BR2 8PW

Guide Price*:
£550,000
LOT 30
 

15C Kangley Bridge Road, London, SE26 5BA

Guide Price*:
£230,000
LOT 31
 

Flat 18 Michael Faraday House, Beaconsfield Road, London, SE17 2TR

Guide Price*:
£250,000
LOT 32
 

17A Bridge Street, Buckingham, Buckinghamshire, MK18 1AF

Guide Price*:
£115,000
LOT 33
 

24 Meadowbank, Watford, Hertfordshire, WD19 4NP

Guide Price*:
£590,000
LOT 34
 

Flat 14 Lucida Court, 534-536 Whippendell Road, Watford, Hertfordshire, WD18 7QH

Guide Price*:
£225,000
LOT 35
 

18 & 20 Elm Avenue, Long Eaton, Nottingham, Nottinghamshire, NG10 4LR

Guide Price*:
£110,000
LOT 36
 

215 Abbott Road, Mansfield, Nottinghamshire, NG19 6HN

Guide Price*:
£70,000
LOT 37
 

281 Westfield Lane, Mansfield, Nottinghamshire, NG19 6HF

Guide Price*:
£90,000
LOT 38
 

122 Wensley Road, Woodthorpe, Nottingham, Nottinghamshire, NG5 4JU

Guide Price*:
£285,000
LOT 39
 

474 Mansfield Road, Nottingham, Nottinghamshire, NG5 2EL

Guide Price*:
£250,000
LOT 41
 

69 Frances Road, Kings Norton, Birmingham, West Midlands, B30 3DU

Guide Price*:
£135,000
LOT 43
 

Orchard Cottage, Worcester Road, Chadbury, Evesham, Worcestershire, WR11 4TD

Guide Price*:
£215,000
LOT 44
 

1 Mill Cottages, The Green, Stowupland, Stowmarket, Suffolk, IP14 4AH

Guide Price*:
£160,000
LOT 45
 

Flat 7 Haven Hall, South Square, Boston, Lincolnshire, PE21 6HX

Guide Price*:
£30,000
LOT 46
 

89 John O'Gaunts Way, Belper, Derbyshire, DE56 0DA

Guide Price*:
£45,000
LOT 47
 

Loft 2 The Guildhall Tavern, Guildhall Place, Cardiff, South Glamorgan, CF10 1EB

Guide Price*:
£65,000
LOT 48
 

Apartment 7 Vestry Court, 6 John William Street, Eccles, Manchester, Lancashire, M30 0EH

Guide Price*:
£90,000
LOT 49
 

Apartment 7 Cumberland Point, 46A Cumberland Avenue, Swinton, Manchester, Lancashire, M27 8HN

Guide Price*:
£90,000
LOT 50
 

60 Quarry Lane, Kelsall, Tarporley, Cheshire, CW6 0PD

Guide Price*:
£200,000
LOT 51
 

2 King Edwards Crescent, Portsmouth, Hampshire, PO2 8NQ

Guide Price*:
£90,000
LOT 52
 

20 Elizabeth Road, Basingstoke, Hampshire, RG22 6AX

Guide Price*:
£140,000
LOT 53
 

Flat 36 Tremona Court, Tremona Road, Southampton, Hampshire, SO16 6TH

Guide Price*:
£60,000
LOT 54
 

Flat 3, 177 Victoria Road, Aldershot, Hampshire, GU11 1JU

Guide Price*:
£70,000
LOT 55
 

Flat 52 Berkeley Court, The Esplanade, Bognor Regis, West Sussex, PO21 1LX

Guide Price*:
£170,000
LOT 56
 

12 Rye Street, Eastbourne, East Sussex, BN22 7PN

Guide Price*:
£175,000
LOT 57
 

Basement Flat, 6 Clarence Square, Brighton, East Sussex, BN1 2ED

Guide Price*:
£320,000
LOT 58
 

Basement Flat, 26 St Johns Road, Ryde, Isle of Wight, PO33 2RN

Guide Price*:
£65,000
LOT 59
 

Flat 7 James House, Church Lane, Ryde, Isle Of Wight, PO33 2LX

Guide Price*:
£50,000
LOT 60
 

12 Melville Street, Ryde, Isle Of Wight, PO33 2AF

Guide Price*:
£140,000
 

67 Wolseley Street, Reading, Berkshire, RG1 6AZ

Guide Price*:
£200,000
 

58 Riverside House, Fobney Street, Reading, Berkshire, RG1 6BJ

Guide Price*:
£255,000
 

13 East Avenue, Oxford, Oxfordshire, OX4 1XP

Guide Price*:
£355,000
 

14 Northampton Road, Oxford, Oxfordshire, OX1 4TG

Guide Price*:
£390,000
 

Land At Hurst Farm, Clay Lane, Jacobs Well, Surrey, GU4 7PF

Guide Price*:
£210,000
 

Flat 13, 46-52 Park Street, Luton, Bedfordshire, LU1 3HP

Guide Price*:
£80,000
 

Iona Cottage, Shore Lane, Bishops Waltham, Southampton, Hampshire, SO32 1DY

Guide Price*:
£270,000
 

Flat 1 Bilberry Court, Staple Gardens, Winchester, Hampshire, SO23 8SP

Guide Price*:
£75,000
 

71 Horsebridge Hill, Newport, Isle Of Wight, PO30 5TJ

Guide Price*:
£150,000
 

2 Larkhill Walk, Birmingham, West Midlands, B14 5PR

Guide Price*:
£135,000
 

Flat 7, 245-249 Dartmouth Road, London, SE26 4QY

Guide Price*:
£175,000
 

169 Riverdale Road, Erith, Kent, DA8 1PY

Guide Price*:
£260,000
 

2A Penhill Road, Bexley, Kent, DA5 3EN

Guide Price*:
£155,000
 

Apartment 211 Pearl Works, 2 Howard Lane, Sheffield, South Yorkshire, S1 2FT

Guide Price*:
£40,000
 

12 Midland Cottage, Ashchurch, Tewkesbury, Gloucestershire, GL20 8JT

Guide Price*:
£135,000
 

Flat 708, 3B Spinners Way, Manchester, Lancashire, M15 4SR

Guide Price*:
£100,000
 

36 Park Road, Spalding, Lincolnshire, PE11 1NH

Guide Price*:
£190,000

How much is your property really worth?

Whether you’re looking to sell or let your property, we can provide you with a free, accurate valuation based on our expert knowledge and the latest trends in your local area.