Back to Property Listings

* Commercial unit * Semi-detached * Measuring approximately 1700 sq f

Description

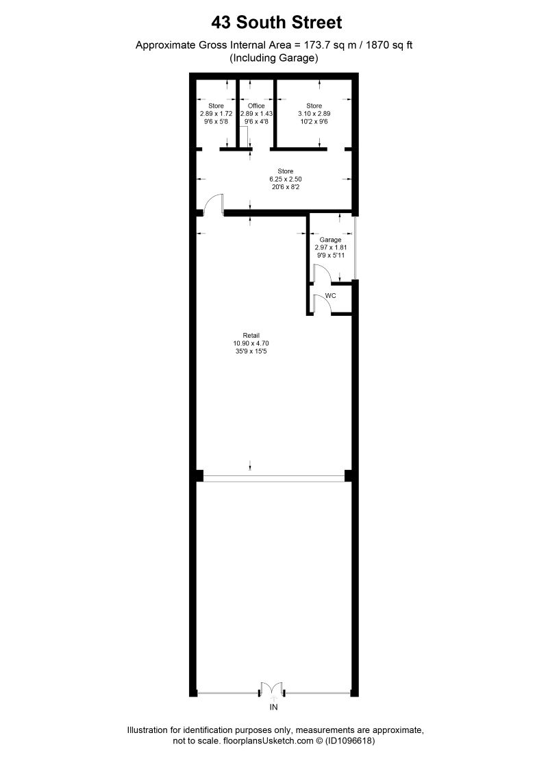
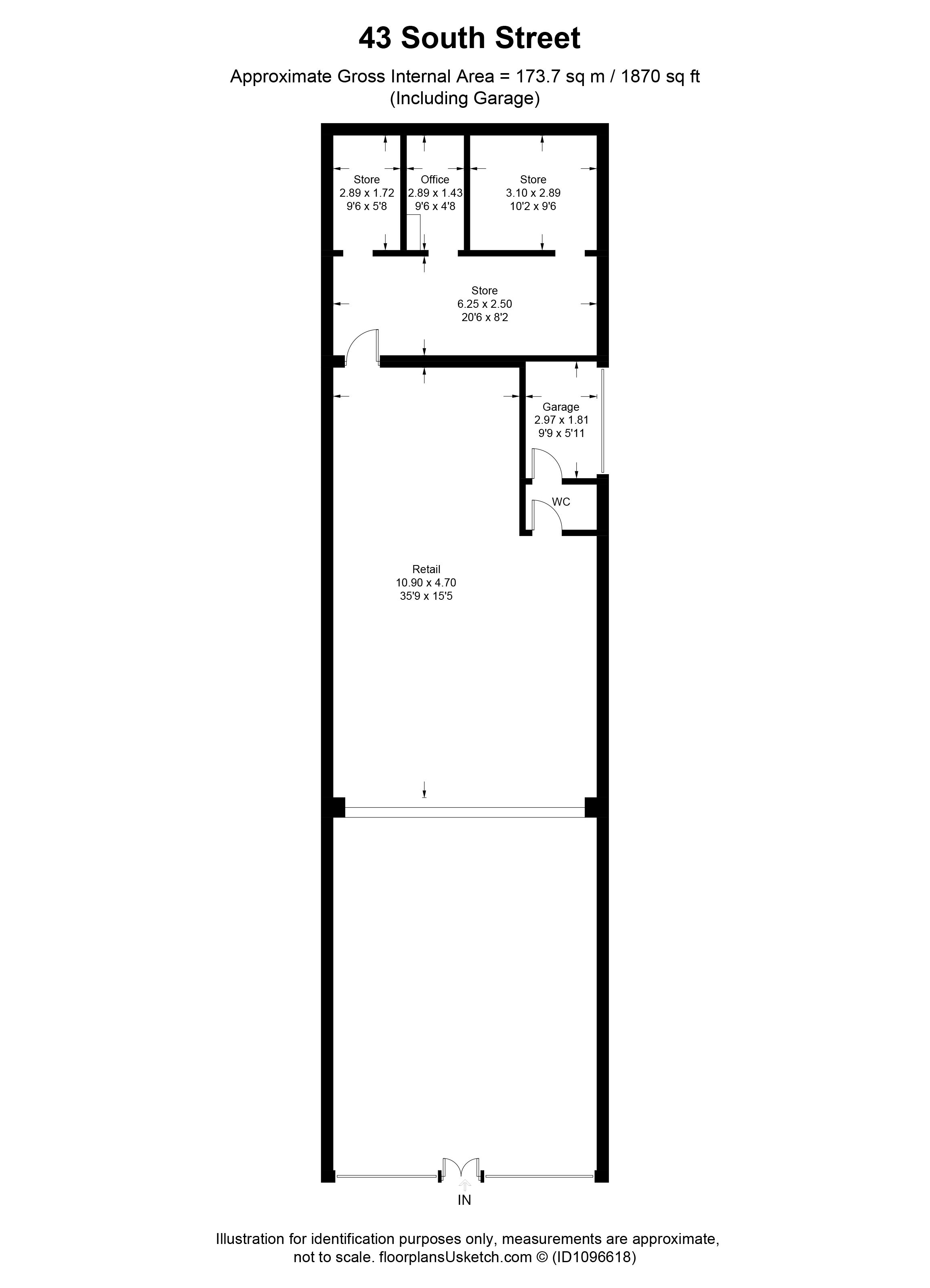
A vacant single storey semi-detached commercial unit measuring approximately 1700 sq ft with parking and current Class E usage. Situated on the outskirts of central Newport, close to town centre Hospital and Quayside providing good access to A3020. Nearby occupiers include Morrisons, TK Maxx and Sports Direct.

Auction
To be sold by online auction (unconditional) on Thursday 30th January 2025 with a 6 WEEK COMPLETION, bidding will open at 10.00.

Registration
All bidders/potential buyers are required to register ahead of the auction date to be able to bid/buy, please visit our website to setup an online auction account.

Tenure
Freehold with vacant possession

EPC rating
C

Legal pack
For each lot there are Special Conditions of Sale and other documentation provided by the vendor's solicitors. If you wish to receive the Legal Pack, you will be able to register for this via the link on our website. You will receive notification by email once the Legal Pack is received from the solicitor.

Additional fees
A buyers charge of £1,500 including VAT is payable on each lot that you buy, in addition to the sale price. Please be aware there may be other additional fees, including disbursements contained in the legal pack payable on completion. Please ensure that you check the legal pack for each lot that you are interested in, prior to bidding.

Pre-auction offers
These must be made in writing and will only be considered if the Legal Pack has been inspected and proof of funding has been supplied to the auctioneers. Pre-auction offers are only considered on an auction basis in accordance with the “Terms & Conditions - Unconditional Auction".

Please note
All plans are strictly for identification purposes only and should not be relied upon. Please refer to the legal pack for the Land Registry plan of each lot. Any plans are reproduced from Ordnance Survey maps with kind permission of the Controller of Her Majesty's Stationery Office @ Crown copyright. All rights reserved, Licence no: 100020449.

* Generally speaking Guide Prices are provided as an indication of each seller's minimum expectation, i.e. 'The Reserve'. They are not necessarily figures which a property will sell for and may change at any time prior to the auction. Virtually every property will be offered subject to a Reserve (a figure below which the Auctioneer cannot sell the property during the auction) which we expect will be set within the Guide Range or no more than 10% above a single figure Guide.

Lot 26 - 43 South Street, Newport, Isle Of Wight, PO30 1JQ

Unconditional Online Auction Sale
Guide Price* £140,000

Loading the bidding panel...


Joint Agent


Agreement Documents


Further Details


Similar Properties

LOT 33
 

Basement Flat, 6 Clarence Square, Brighton, East Sussex, BN1 2ED

Guide Price*:
£320,000
LOT 24
 

34 Marshcourt, Lychpit, Basingstoke, Hampshire, RG24 8UY

Guide Price*:
£345,000
LOT 34
 

27 Gorleston Road, Birmingham, West Midlands, B14 4NR

Guide Price*:
£140,000
LOT 4
 

8 Claremont Road, Windsor, Berkshire, SL4 3AX

Guide Price*:
£275,000
LOT 12
 

45 Naseby, Bracknell, Berkshire, RG12 7HD

Guide Price*:
£125,000
LOT 23
 

27 Highclere Road, Aldershot, Hampshire, GU12 4EQ

Guide Price*:
£200,000
LOT 68
 

109 Gravel Road, Bromley, Kent, BR2 8PW

Guide Price*:
£580,000
LOT 3
 

7 Claremont Road, Windsor, Berkshire, SL4 3AX

Guide Price*:
£750,000
LOT 2
 

Dalma, Pinkneys Drive, Maidenhead, Berkshire, SL6 6QD

Guide Price*:
£600,000
LOT 17
 

5 Folly View Road, Faringdon, Oxfordshire, SN7 7DL

Guide Price*:
£275,000
LOT 22
 

68 Hare Hill, Addlestone, Surrey, KT15 1DN

Guide Price*:
£465,000
LOT 15
 

Cedar Wood Cottage, 23 Mill Street, Islip, Kidlington, Oxfordshire, OX5 2SY

Guide Price*:
£250,000
LOT 59
 

Apartment 46 The Bayley, 21 New Bailey Street, Salford, Lancashire, M3 5AX

Guide Price*:
£80,000
LOT 29
 

41 Posbrooke Road, Southsea, Hampshire, PO4 8JJ

Guide Price*:
£190,000
LOT 43
 

32 Vernon Drive, Harefield, Uxbridge, Middlesex, UB9 6EG

Guide Price*:
£380,000
LOT 64
 

645 Western Boulevard, Nottingham, Nottinghamshire, NG8 5GR

Guide Price*:
£90,000
LOT 47
 

24 Meadowbank, Watford, Hertfordshire, WD19 4NP

Guide Price*:
£590,000
LOT 62
 

1 Wilcox Avenue, Mansfield Woodhouse, Mansfield, Nottinghamshire, NG19 8HD

Guide Price*:
£80,000
LOT 48
 

Flat 14 Lucida Court, 534-536 Whippendell Road, Watford, Hertfordshire, WD18 7QH

Guide Price*:
£225,000
LOT 51
 

Flat 9 Streatleigh Court, Streatham High Road, London, SW16 1EG

Guide Price*:
£250,000
LOT 36
 

37 Highters Heath Lane, Birmingham, West Midlands, B14 4LX

Guide Price*:
£160,000
LOT 42
 

47A Cannon Lane, Pinner, Middlesex, HA5 1HN

Guide Price*:
£520,000
LOT 53
 

147B Uxbridge Road, London, W13 9AU

Guide Price*:
£140,000
LOT 35
 

45 Ada Road, Yardley, Birmingham, West Midlands, B25 8DD

Guide Price*:
£140,000
LOT 13
 

20 Oxford Road, Owlsmoor, Sandhurst, Berkshire, GU47 0TR

Guide Price*:
£285,000
LOT 25
 

24 Beaumont Grove, Aldershot, Hampshire, GU11 1YH

Guide Price*:
£210,000
LOT 7
 

Flat 76 Regents Riverside, Brigham Road, Reading, Berkshire, RG1 8QS

Guide Price*:
£180,000
LOT 44
 

11 Westways, York Road, Northwood, Middlesex, HA6 1JN

Guide Price*:
£185,000
LOT 27
 

143 Northern Parade, Portsmouth, Hampshire, PO2 9PE

Guide Price*:
£100,000
LOT 49
 

106 The Woodlands, London, SE19 3EH

Guide Price*:
£180,000
LOT 21
 

80 High Street, Old Woking, Woking, Surrey, GU22 9LN

Guide Price*:
£265,000
LOT 57
 

17A Bridge Street, Buckingham, Buckinghamshire, MK18 1AF

Guide Price*:
£115,000
LOT 5
 

20 Aston Mead, Windsor, Berkshire, SL4 5PW

Guide Price*:
£435,000
LOT 58
 

12 Stadium Approach, Aylesbury, Buckinghamshire, HP21 9EX

Guide Price*:
£140,000
LOT 19
 

15 Elm Road, New Malden, Surrey, KT3 3HB

Guide Price*:
£380,000
LOT 32
 

Basement Flat, 26 St Johns Road, Ryde, Isle of Wight, PO33 2RN

Guide Price*:
£65,000
LOT 9
 

12 Montfort Gate, Caversham, Reading, Berkshire, RG4 6AD

Guide Price*:
£390,000
LOT 11
 

27 Warren Down, Bracknell, Berkshire, RG42 1WD

Guide Price*:
£90,000
LOT 54
 

Flat 18 Michael Faraday House, Beaconsfield Road, London, SE17 2TR

Guide Price*:
£250,000
LOT 41
 

Loft 2 The Guildhall Tavern, Guildhall Place, Cardiff, South Glamorgan, CF10 1EB

Guide Price*:
£65,000
LOT 52
 

417 Westhorne Avenue, London, SE12 9AB

Guide Price*:
£620,000
LOT 20
 

56 Common Road, Claygate, Esher, Surrey, KT10 0HJ

Guide Price*:
£270,000
LOT 26
 

Flat 408 Churchill Place, Churchill Way, Basingstoke, Hampshire, RG21 7AA

Guide Price*:
£100,000
LOT 60
 

Apartment 60 Caminada House, 3 St. Lawrence Street, Manchester, Lancashire, M15 4DY

Guide Price*:
£90,000
LOT 31
 

6 Larkspur Gardens, Holbury, Southampton, Hampshire, SO45 2QH

Guide Price*:
£275,000
LOT 65
 

474 Mansfield Road, Nottingham, Nottinghamshire, NG5 2EL

Guide Price*:
£250,000
LOT 38
 

29 Mill Street, Worcester, Worcestershire, WR1 2NH

Guide Price*:
£120,000
LOT 39
 

27 Mill Street, Worcester, Worcestershire, WR1 2NH

Guide Price*:
£120,000
LOT 6
 

Flat 1 Fairways House, London Road, Sunningdale, Ascot, Berkshire, SL5 0EY

Guide Price*:
£350,000
LOT 63
 

Flat 84 Block 2 The Hicking Building, Queens Road, Nottingham, Nottinghamshire, NG2 3AT

Guide Price*:
£70,000
LOT 61
 

Apartment 7 Cumberland Point, 46A Cumberland Avenue, Swinton, Manchester, Lancashire, M27 8HN

Guide Price*:
£100,000
LOT 56
 

17 Barnfield, Iver, Buckinghamshire, SL0 0AL

Guide Price*:
£210,000
LOT 55
 

Flat 62 Coppermill Heights, Mill Mead Road, London, N17 9FH

Guide Price*:
£275,000
LOT 8
 

105 Belmont Road, Reading, Berkshire, RG30 2UY

Guide Price*:
£210,000
LOT 28
 

48 Meyrick Road, Portsmouth, Hampshire, PO2 8JP

Guide Price*:
£165,000
LOT 30
 

17 Fairhome Close, Gosport, Hampshire, PO12 4HZ

Guide Price*:
£145,000
LOT 10
 

26 Brunswick, Bracknell, Berkshire, RG12 7YY

Guide Price*:
£230,000
LOT 70
 

19 Pembroke Street, Bedford, Bedfordshire, MK40 3RH

Guide Price*:
£310,000
LOT 37
 

83 Firth Drive, Birmingham, West Midlands, B14 4DL

Guide Price*:
£150,000
LOT 1
 

Meridi, Lock Avenue, Maidenhead, Berkshire, SL6 8JW

Guide Price*:
£550,000
LOT 69
 

Homely, Chelsfield Lane, Orpington, Kent, BR6 7RR

Guide Price*:
£420,000
LOT 67
 

294 Milwards, Harlow, Essex, CM19 4SN

Guide Price*:
£180,000
LOT 46
 

108 The Avenue, Pinner, Middlesex, HA5 5BJ

Guide Price*:
£590,000
LOT 16
 

22 Hazelrig Drive, Thame, Oxfordshire, OX9 3XL

Guide Price*:
£130,000
LOT 14
 

21 Dennis Way, Slough, Berkshire, SL1 5JS

Guide Price*:
£450,000
LOT 18
 

546 Cricklade Road, Swindon, Wiltshire, SN2 7AQ

Guide Price*:
£180,000
LOT 50
 

158 Sandhurst Road, London, SE6 1XD

Guide Price*:
£380,000
LOT 45
 

106 Dickens Avenue, Uxbridge, Middlesex, UB8 3DN

Guide Price*:
£390,000
LOT 40
 

Jasmine House, Bartestree, Hereford, Herefordshire, HR1 4BY

Guide Price*:
£580,000

How much is your property really worth?

Whether you’re looking to sell or let your property, we can provide you with a free, accurate valuation based on our expert knowledge and the latest trends in your local area.